Универсальное помещение
Братьев Кашириных, 127 Показать на карте
Братьев Кашириных, 127 Показать на карте
Калининский район, ЧГУ
Челябинск
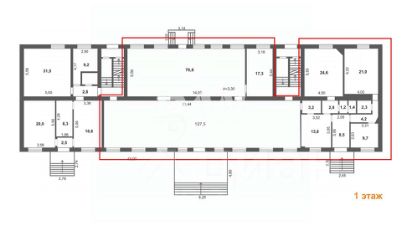
Арт. 100756333 ВНИМАНИЕ!!!ЦЕНА СНИЖЕНА!!!Идеальное помещение для вашего бизнеса в сердце жилого кварталаПредлагаю Вам рассмотреть возможность аренды коммерческой недвижимости, по адресу ул. Братьев Кашириных 127.Это уникальная возможность расширить вашу торговую сеть или запустить новый проект в локации с высокой проходимостью.Ключевые преимущества:1. Выгодное расположение:- Район с высокой плотностью населения.- Стабильный поток потенциальных клиентов.- Помещение находится в кампусе общежития ЧелГУ.- Проживающих студентов около 400 человек.- Большой поток в учебный год.-Ликвидное место.-В будущем территория будет соединена с жилым массивом на котором находится 4.600 домохозяйств.2. Характеристики помещения:- Площадь: 79 кв.м (собственность, минимальные риски).- Входы: отдельный вход с крыльцом для покупателей и зоной разгрузки.3. Коммуникации (центральные системы):- Отопление, водоснабжение, канализация.- Электричество: 15 кВт.4. Стоимость аренды:- от 1350 руб./кв.м. в месяц.- Гибкие условия для долгосрочного сотрудничества.5.Помещение в черновой отделке- Соответствие стандартам: Удобство для клиентов и сотрудников.Предусмотрены арендные каникулы до момента ввода объекта в эксплуатацию.Подойдёт под: парикмахерская, аптека, школа иностранных языков, офисное помещение, цветочный магазин, стоматология или жду ваш вариантСделайте шаг к успеху уже сегодня!
79 м2
- Показать контакты
- Добавить в избранное
79 м2
98 750 /мес.
1 250 /м2
