3-к, Комсомольский проспект, 72 Показать на карте
Курчатовский район, Северо-Запад
Челябинск
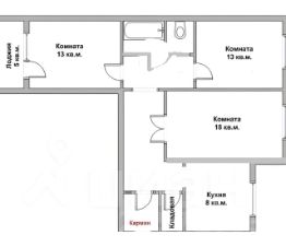
Продаётся просторная 3-комнатная квартира площадью 64,5 кв. м на 6 этаже 9-этажного панельного дома 1978 года постройки. Квартира расположена в уютном районе с развитой инфраструктурой. Высота потолков составляет 2,51 метра, что создаёт ощущение простора. Окна выходят на две стороны: на улицу и во двор, что обеспечивает хорошую освещённость в течение дня. Квартира без ремонта, что позволяет вам воплотить все дизайнерские идеи и создать интерьер по своему вкусу. В квартире есть одна лоджия, где можно организовать уютное место для отдыха. Санузел раздельный, что удобно для семьи. Кухня площадью 9 кв. м станет отличным местом для кулинарных экспериментов.Дом находится в хорошем состоянии, оборудован пассажирским лифтом и мусоропроводом, что делает проживание комфортным. Во дворе предусмотрена наземная парковка, поэтому вы всегда найдёте место для своего автомобиля.Район, в котором расположена квартира, богат на инфраструктуру: в пешей доступности находятся школы, детские сады, клиники, магазины. Всё необходимое для комфортной жизни — рядом. Хорошая транспортная доступность позволяет быстро добраться в любую часть города.Квартира продаётся от собственника, без обременений, возможна ипотека. Все документы готовы к сделке, что позволяет быстро и без лишних хлопот оформить покупку.Звоните и записывайтесь на просмотр! Это отличная возможность приобрести квартиру в хорошем районе и создать в ней дом своей мечты.
64 м2
6 / 9 этаж
Панель
- Показать контакты
- Добавить в избранное
64 м2
6 / 9 этаж
Панель
6 500 000
100 775 /м2
