Свой ''Rezon'' для каждого нашего клиента!
Вниманию Арендаторов федерального и регионального значения!
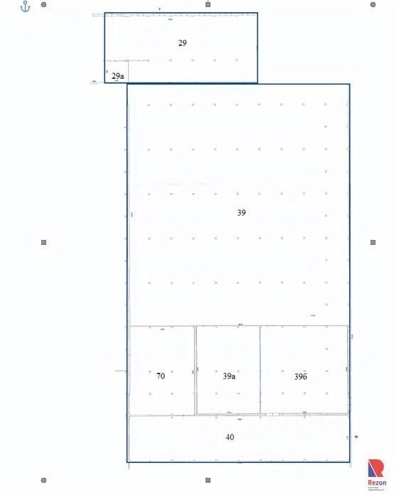
Сдается склад в одном из развитых складских терминалов г.Челябинска!
Площадь 3200м2.
Возможно увеличение до 6800м2.
Основные характеристики:
* Класс ''B+'',
* Высота потолков - 6,8м,
* Топпинговое покрытие пола,
* Допустимая нагрузка на пол - от 6тн,
* Температурный режим +10...
Свой ''Rezon'' для каждого нашего клиента!
Вниманию Арендаторов федерального и регионального значения!
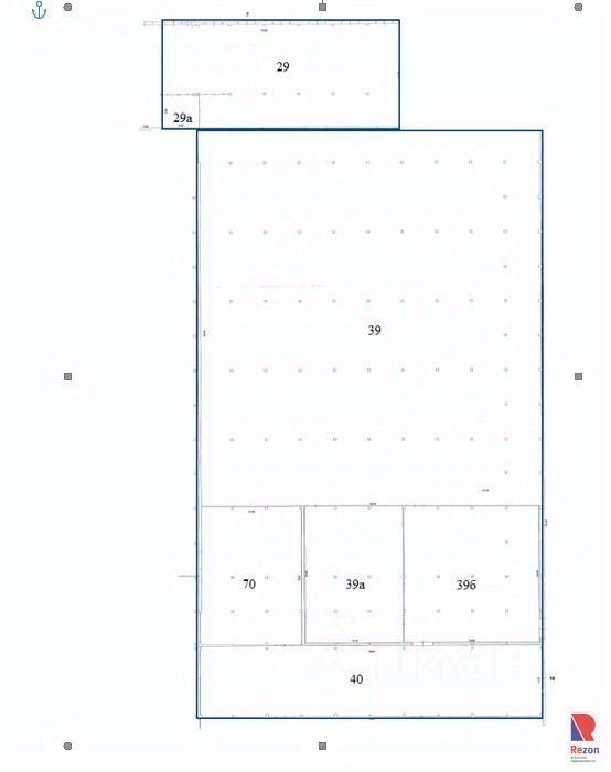
Сдается склад в одном из развитых складских терминалов г.Челябинска!
Площадь 3200м2.
Возможно увеличение до 6800м2.
Основные характеристики:
* Класс ''B+'',
* Высота потолков - 6,8м,
* Топпинговое покрытие пола,
* Допустимая нагрузка на пол - от 6тн,
* Температурный режим +10...+15 градусов по Цельсию,
* Система охранной сигнализации и видеонаблюдения,
* Cистема пожаротушения и пожарная сигнализация,
* 5 автоматических ворот докового типа с погрузо-разгрузочными площадками регулируемой высоты,
* 2 автоматических ворот докового типа,
* 4 автоматических ворот докового типа с погрузо-разгрузочной рампой,
* шаг колонн от 6 до 12м,
* стеллажное оборудование.
Имеются офисные помещения,
Интернет,
Телефония.
В стоимость арендной платы не включены э/э, водопотребление, теплоснабжение.
Оплата переменной части по счетчикам.
Месторасположение:
* 1,5 км от федеральной трассы М5,
* 15 км до аэропорта ''Баландино'',
* 1704 км до г.Москвы.
Окончательные условия обсуждаются индивидуально.
Приглашаем к просмотру!