сдам офисное помещение, Молодогвардейцев, 31600 000 ₽ в месяц
15 дек
Дата публикации объявления
Обн. 16 мая
Дата обновления объявления
17
Количество просмотров (+ просмотры за сегодня)
1000 ₽/м² в месяц
Параметры
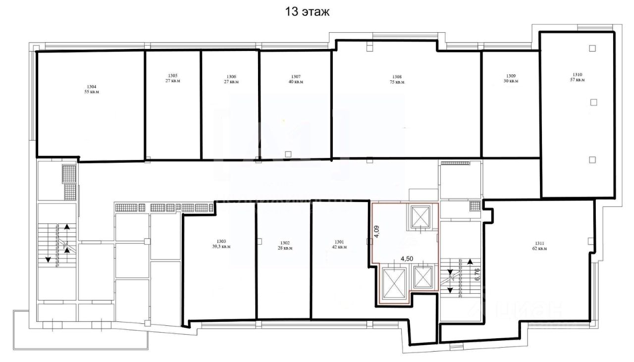
Общая площадь600 м2
Этаж13
Назначение помещения
для работы с клиентами
Сдаются офисные площади большого формата в Бизнес центре ГРАНД ВЕРА, площадь этажа 600 м2, можно рассмотреть в аренду 1 или несколько этажей, этажи изначально имеют свободную планировку, в настоящее время на всех этажах выполнено зонирование разного формата, некоторые этажи есть возможность изменить планировку под задачи обратившегося клиента, что является большим плюсом. Офисы светлые с большими окнами. Присутствует частичное кондиционирование. В здании работают 3 лифта. Дополнительно к стоимости оплачивается электроэнергия, интернет, клининг. В стоимость включен НДС 5%. Провайдеры в здании ДомРу и Гиперсеть. Есть возможность аренды машиномест на подземной парковке для комфортной парковки. Здание имеет круглосуточную охрану и видеонаблюдение по периметру.
Сдаются офисные площади большого формата в Бизнес центре ГРАНД ВЕРА, площадь этажа 600 м2, можно рассмотреть в аренду 1 или несколько этажей, этажи изначально имеют свободную планировку, в настоящее время на всех этажах выполнено зонирование разного формата, некоторые этажи есть возможность изменить планировку под задачи обратившегося клиента, что является большим плюсом. Офисы светлые с большими окнами. Присутствует частичное кондиционирование. В здании работают 3 лифта. Дополнительно к стоимости оплачивается электроэнергия, интернет, клининг. В стоимость включен НДС 5%. Провайдеры в здании ДомРу и Гиперсеть. Есть возможность аренды машиномест на подземной парковке для комфортной парковки. Здание имеет круглосуточную охрану и видеонаблюдение по периметру. Удобная локация в северо-западной части города позволяет максимально комфортно добраться из любого района города.