сдам универсальное помещение, Молодогвардейцев, 31228 000 ₽ в месяц
15 дек
Дата публикации объявления
Обн. 22 мая
Дата обновления объявления
15
Количество просмотров (+ просмотры за сегодня)
1000 ₽/м² в месяц
Параметры
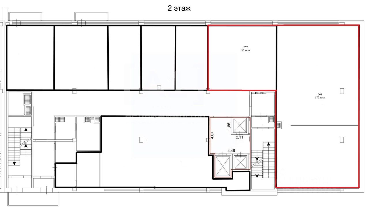
Общая площадь228 м2
Этаж2
Назначение помещения
фитнес-центр, спортивный зал
Сдается помещение свободного назначения в Бизнес центре ГРАНД ВЕРА, очень удобная локация в северо-западной части города, помещение расположено на 2 этаже ранее использовалось под фитнес центр, состоит из 2 залов : 50м2 и 120м2, также есть зона ресепшн, раздевалки и душевые, можно арендовать всю площадь 228м2 или только залы 172м2. Можно использовать для занятий спорта, под фитнес, танцевальную студию, семинары, тренинги, требующие свободного пространства. Дополнительно к стоимости оплачивается электроэнергия, интернет, клининг. В стоимость включен НДС 5%. Провайдеры в здании ДомРу и Гиперсеть. Есть возможность аренды машиномест на подземной парковке для комфортной парковки. Здание имеет круглосуточную охрану и видеонаблюдение по периметру.
Сдается помещение свободного назначения в Бизнес центре ГРАНД ВЕРА, очень удобная локация в северо-западной части города, помещение расположено на 2 этаже ранее использовалось под фитнес центр, состоит из 2 залов : 50м2 и 120м2, также есть зона ресепшн, раздевалки и душевые, можно арендовать всю площадь 228м2 или только залы 172м2. Можно использовать для занятий спорта, под фитнес, танцевальную студию, семинары, тренинги, требующие свободного пространства. Дополнительно к стоимости оплачивается электроэнергия, интернет, клининг. В стоимость включен НДС 5%. Провайдеры в здании ДомРу и Гиперсеть. Есть возможность аренды машиномест на подземной парковке для комфортной парковки. Здание имеет круглосуточную охрану и видеонаблюдение по периметру. Удобная локация позволяет максимально комфортно добраться из любого района города.