2-к, Академика Королева, 11 Показать на карте
Центральный район, Тополиная аллея
Челябинск
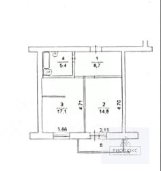
Купить просторную и светлую квартиру в экологически чистом районе квартира 73,4 м² с мебелью и техникой | Челябинск, ул. Академика Королёва, 11Продаётся светлая и уютная 2-комнатная квартира в популярном районе Челябинска ул. Академика Королёва, 11 (район Тополиной аллеи).Простор и функциональность:Общая площадь — 73,4 м² — редкое сочетание: много пространства при всего двух комнатахКухня отделена от гостиной декоративной стеной со встроенным большим аквариумом оригинальное дизайнерское решение, которое визуально зонирует пространство и создаёт уютИзолированная спальняУдобная и большая гардеробная зонаПросторный, раздельный санузелОгромный балкон, который можно использовать как кабинет, зону отдыха или мастерскуюОкна выходят во двор 4 этаж комфортный уровень, без зависимости от лифтаПолностью меблирована:Вся мебель остаётся покупателю — ничего покупать не нужноЗабирается только техникаО доме:Современный кирпично-монолитный домЧистый подъезд, ухоженная придомовая территорияНадёжные, спокойные соседиВидеонаблюдение, детская площадка, парковка во двореРайон Тополиной аллеи:Один из самых зелёных, уютных и развитых районов ЧелябинскаПоблизости — школы, детские сады, магазины, аптеки, остановки транспортаУдобный выезд в любую часть городаДокументы в порядке:Один взрослый собственникБез обремененийБыстрый выход на сделкуПодходит под ипотеку и маткапиталЗвоните или пишите — такая просторная квартира с уникальной планировкой появляется нечасто!Готовы показать в удобное для вас время.Арт. 129483422
73 м2
4 / 9 этаж
Кирпич
- Показать контакты
- Добавить в избранное
73 м2
4 / 9 этаж
Кирпич
9 150 000
124 659 /м2
