2-к, Мусы Джалиля, 1 Показать на карте
Курчатовский район, 48-й микрорайон
Челябинск, Жилой комплекс «Покровский»
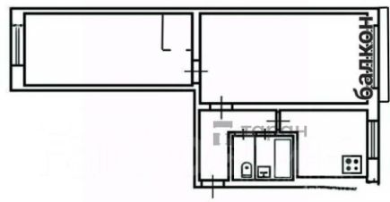
Продаётся 2-комнатная квартира в Курчатовском районе г. Челябинска Срочная продажаПредлагается к продаже светлая и просторная двухкомнатная квартира по адресу: ул. Мусы Джалиля, д. 1 — комфортное жильё в современном и развитом районе города. Этаж: 12 из 12 Общая площадь: 50,2 м² Планировка: функциональная, комнаты изолированные Кухня: 9 м²Квартира отличается удачной планировкой Последний этаж обеспечивает дополнительную тишину, приватность и приятные виды из окон.Санузел раздельный Просторная лоджия — полноценное дополнительное пространство для отдыха или хранения.Жилой дом расположен в благоустроенном районе с развитой инфраструктурой: — магазины повседневного спроса прямо в доме (включая Чижик, Красное&Белое, пункт выдачи Ozon) — рядом ведётся строительство новой школы — удобная транспортная доступность, остановка общественного транспорта в шаговой доступности — поблизости экопарк и оборудованная экотропа для прогулок и отдыха на природе — закрытая придомовая территория, обеспечивающая комфорт, порядок и безопасность Чистый и ухоженный подъезд Спокойная и доброжелательная атмосфера Комфортное окружение для жизни Объект подходит как для личного проживания, так и для будущих инвестиций Юридическая информация: два собственника, квартира с ипотечным обременением, небольшой остаток.Для получения дополнительной информации и организации просмотра — звоните или пишите в удобное для вас время. В услугах риэлтора не нуждаемся.
50 м2
12 / 12 этаж
Панель
- Показать контакты
- Добавить в избранное
50 м2
12 / 12 этаж
Панель
5 800 000
115 538 /м2
