2-к, Павленкова, гп 1 Показать на карте
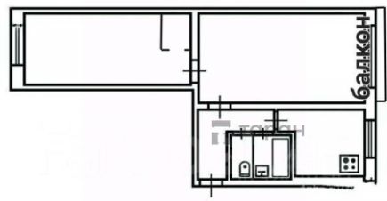
Двухкомнатная квартира с предчистовой отделкой в ЖК ''Брусника в Эльтауне'' на 6 этаже. Общая площадь: 67.19 кв.м., жилая: 23.8 кв.м., площадь просторной кухни-гостиной: 17.6 кв.м. Квартира угловая, очень светлая, естественная вентиляция при открытии окон. В квартире одна лоджия, один совмещенный санузел. Высота потолков 2.7 м. Квартира находится в корпусе 4. Дом монолитный, одноподъездный, высотой 8 этажей. На этаже 7 квартир. В подъезде 1 пассажирский и 1 грузовой лифт. Окончание строительства - 4 квартал 2028 года. Оформление сделки по договору долевого участия. Квартира с кухней-гостиной и двумя спальнями в Брусника в Эльтауне. Особенности планировки: разнесённые спальни. квартиры в нашей базе: ЛТН01.1-Ж4.6.9. Квартал ''Брусника в Эльтауне'' расположился к северу-западу от Челябинска в окружении лесного массива, рядом с Лебединым прудом и Скалистым озером. Две главных слова, характеризующих Эльтаун, — концентрация и разнообразие. Его структуру формируют сразу несколько типов застройки — коттеджи, таунхаусы, квартиры в мало- и среднеэтажных домах, в перспективе нескольких лет здесь будут открыты десятки кафе, ресторанов, магазинов, аптек, медицинских и фитнес-центров. Для круглогодичного отдыха в городе построят собственный курорт.В Эльтауне будет действовать концепция непрерывного образования. Уже открыт муниципальный детский сад ''Ёлочка'' на 230 мест. В планах — инновационная школа на 1100 учеников. Кроме того, в Эльтауне организован Научно-исследовательский центр девелопмента МBA и МФТИ — одного из лучших вузов страны.Брусника стала полноправным девелопером Эльтауна. Мы построим здесь новый квартал со среднеэтажным жильём, богатым озеленением и разнообразной коммерческой и социальной инфраструктурой. Квартал Брусники расположен на въезде в город и станет его лицом. Недалеко от проекта проходит Новоградский тракт. По нему можно быстро добраться до Челябинска, озёр Увильды, Тургояк, Кисегач и Еловое, горнолыжных курортов ''Солнечная долина'', ''Евразия'' и ''Завьялиха'', парков ''Таганай'' и ''Зюраткуль''. Между Эльтауном и Челябинском курсирует автобус. Количество маршрутов и остановок общественного транспорта будет постоянно увеличиваться.До Челябинска — 5 минут на автомобилеДо железнодорожного вокзала — 35 минутДо аэропорта — 45 минут Проект Брусники в Эльтауне — комплексная застройка, состоящая из домов высотой не более 8 этажей. Территория Брусники разделена на несколько функциональных зон. Со стороны улицы Павленкова мы спроектировали фронт с коммерцией и приветственными площадями. На первых этажах домов — кафе, магазины, рестораны, кружки и образовательные студии.В глубине квартала расположатся общественные пространства с дождевыми садами, огородами и рощей.Ближе к лесу — пространство, которое мы назвали ''задний двор''. Здесь — игровые лужайки, плейхабы, луг для пикников и йоги, волейбольные площадки, воркаут. В этой же части, на границе квартала, предусмотрена парковка, на которой мы высадим взрослые деревья и кустарники. #Z
67 м2
6 / 8 этаж
Монолит
- Показать контакты
- Добавить в избранное
67 м2
6 / 8 этаж
Монолит
9 050 000
134 693 /м2
Новостройка,
IV-2028
IV-2028
