2-к, Болейко, 5 Показать на карте
Калининский район, Кирсарай
Челябинск
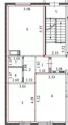
Предлагаем Вашему вниманию уютную квартиру с отличными условиями проживания. Несмотря на расположение дома вне центральных районов города, жильё обладает значительными преимуществами благодаря своей уникальной атмосфере спокойствия и комфорта. Окружающая среда радует отсутствием городского шума и пыли, обеспечивая вам чистый воздух и тишину.Преимущества местоположения включают прекрасный вид из окон, создающий ощущение единения с природой. Всего в двух минутах ходьбы расположена удобная транспортная развязка, позволяющая быстро добраться до любого района города. Инфраструктура района хорошо развита: поблизости расположены несколько супермаркетов, детские сады ( 423, 404, 88), школа 109, аптека сети ''Живика'', пункт выдачи заказов Wildberries, спортивно-оздоровительный клуб ''Лотос''.Для любителей природы всего в паре сотен метров начинается живописный лесной массив вдоль берега реки Миасс, где можно насладиться прогулками и свежим воздухом. Соседи отличаются дружелюбием и доброжелательностью, создавая приятную атмосферу внутри жилого комплекса.Квартира отличается идеальной планировкой с раздельными комнатами, выходящими на разные стороны света, большим коридором и просторной кухней. Особое внимание заслуживает застеклённая лоджия, расширяющая пространство.Интерьер жилья включает обновлённую электрику, качественные натяжные потолки и новую входную дверь . Для удобства будущих владельцев предлагается стильный и функциональный кухонный гарнитур, а также вместительный встроенный шкаф-купе в коридоре, который передаётся новым владельцам в качестве подарка.Санитарные помещения находятся в хорошем состоянии, однако требуют косметического обновления, что позволяет будущим хозяевам воплотить собственные предпочтения и идеи дизайна. Приглашаем Вас на просмотр по предварительной записи!Номер объекта: #1/542281/23208
52 м2
3 / 10 этаж
Панель
- Показать контакты
- Добавить в избранное
52 м2
3 / 10 этаж
Панель
4 850 000
92 381 /м2
