2-к, Славы проспект, 12 Показать на карте
Центр
Копейск
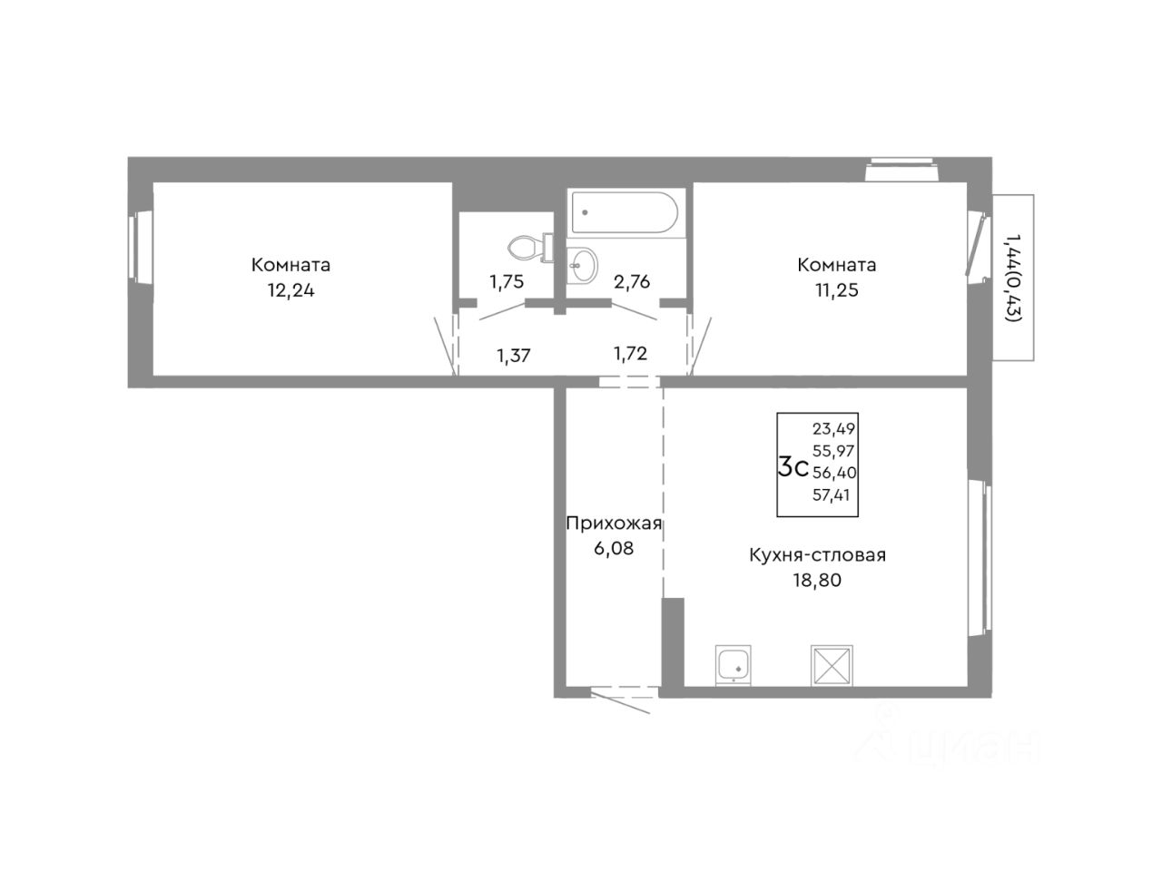
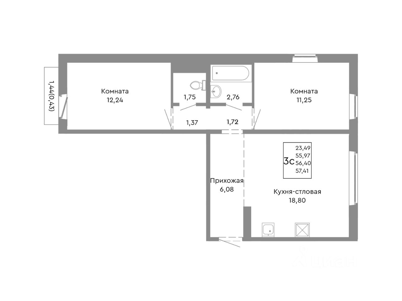
В связи с переездом (собственник) продается полностью готовая к проживанию, тёплая, светлая, просторная, уютная двухкомнатная квартира хорошим ремонтом в мкрне Уютный. Остаётся мебель: кухня, встроенные шкафы. Возможен торг. Все комнаты изолированы, что обеспечивает комфорт и приватность. В квартире есть раздельный санузел, а также просторная утеплённая лоджия, (по проекту в доме предусмотрено 2 санузла, поэтому возможно установить 2й санузел, либо сделать гардеробную). Дом панельного типа построен в 2007 году, что гарантирует качество строительства. В подъезде имеется пассажирский лифт, что особенно удобно для семей с детьми или пожилых людей. Во дворе оборудована спортивная и детская площадка, а также предусмотрена подземная и открытая парковка.Квартира расположена на 4 этаже 10-этажного дома, окна выходят на восточную солнечную сторону, обеспечивая хорошее естественное освещение. Встроенные шкафы добавляют функциональности пространству.Квартира улучшенной планировки с большой кухней 14.2кв.м., большой ванной комнатой, в которой установлена большая ванна, квадратный зал 18.4 кв.м., спальня 16,6кв.м., светлая, тёплая, уютная. В кухне (в рабочей зоне, ванной и туалете тёплый пол + кафель, что очень хорошо выручает в холодное межсезонье без отопления). Стены и пол всё выровнено, пол утеплён, деревянный пол + ламинат в остальной квартире. Установлен проточный фильтр для очищения водопроводной воды в питьевую. Хорошие спокойные соседи.Дом удачно расположен в центре Копейска. Развитая инфраструктура: Рядом ТРК Слава, детские сады, школы, поликлиника, детские кружки и секции, спортзалы, кафе, множество разных магазинов и т.д.Хорошая транспортная доступность: остановка рядом с домом 3 минуты, транспорт во все направления, а до Челябинска автобус ходит каждые 5-10 минут и время поездки занимает 20 минут.Подходит под семейную ипотеку. Один взрослый собственник. Звоните, покажем с удовольствием, реальным покупателям торг!
65 м2
4 / 10 этаж
Панель
- Показать контакты
- Добавить в избранное
65 м2
4 / 10 этаж
Панель
7 700 000
118 098 /м2
