Мы объединились! Теперь объявления сразу на двух сайтах. Ищите там, где удобно
Приложение Циан
Личный кабинет
Сообщения
Избранное
  • Добавить объявление
  • Ипотека
  • Подбор риелтора
  • Журнал
  • Шаблоны документов
  • Продажа
  • Аренда
  • Новостройки
  • Коммерческая
  • Бизнес-центры
  • Дачи, участки
  • Земля
  • Гаражи

Продажа квартир в Челябинске

8679 объяв.
9 999 999 ₽
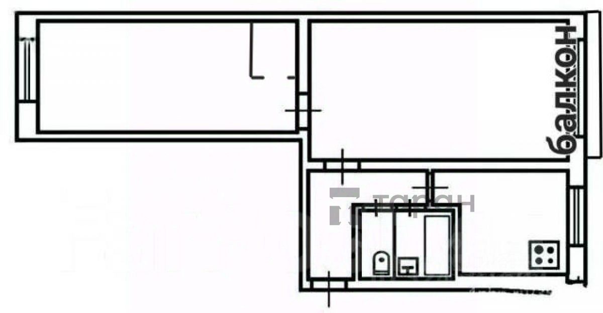
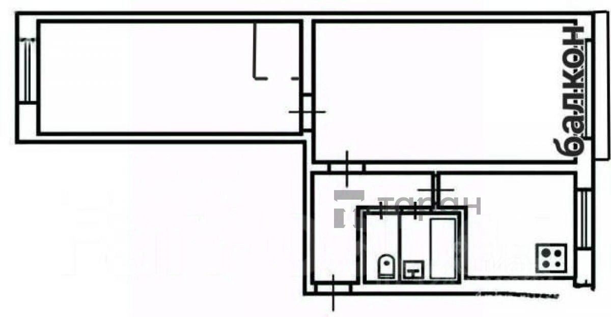
3-к, Молодогвардейцев, 41
Больница скорой помощи, Калининский район
107 м² · Этаж 4 из 10
Построен в 1999
Продается уютная трехкомнатная квартира площадью 107 кв. м, расположенная на 4 этаже 10-этажного панельного дома 1999 года постройки. Квартира находится в тихом районе, окна выходят во двор, что обеспечивает тишину и спокойствие. Просторная кухня площадью 14 кв. м станет отличным местом для семейных ужинов. В квартире сделан косметический ремонт, поэтому вы сможете обновить интерьер по своему вкусу. Две лоджии дают дополнительное пространство для отдыха или хранения вещей. В квартире есть один отдельный санузел, что удобно для семьи. Дом в хорошем состоянии, оборудован пассажирским лифтом, поэтому можно быстро добираться до квартиры. На территории есть наземная парковка, где всегда найдется место для вашего автомобиля. Рядом с домом находятся все необходимые объекты инфраструктуры: школы, детские сады, клиники и магазины. Вам будет удобно добираться до работы и учебы, а также делать покупки в пешей доступности. Продажа квартиры осуществляется по договору купли-продажи. Возможна ипотека, что позволяет сделать покупку более доступной. Все документы готовы к сделке, квартира без обременений. Приглашаем вас на просмотр! Записывайтесь на удобное для вас время и убедитесь в том, что эта квартира станет вашим идеальным домом.
1/25
4 350 000 ₽
1-к, Горького, 63
ДК «Смена», Тракторозаводский район
39 м² · Этаж 2 из 9
Построен в 1990
Продаётся просторная однокомнатная квартира 39,1 м² в кирпичном доме (2/9 этаж). Дом 1990 года. Главные выгоды для вас: Полностью готова к жизни — качественный ремонт, натяжные потолки, хорошая кухня. Заезжайте и живите с первого дня. Удобная площадь — 39,1 м². Это не тесная ''однушка'', а полноценное пространство для комфортной жизни. Юридически чисто — без обременений, всего 1 собственник. Безопасная сделка. Транспортная доступность — остановка в 2 минутах от дома, удобная транспортная развязка. Доберётесь куда угодно без проблем. Удачное расположение — всего 10 минут до центра, но при этом тихий район без суеты. Всё рядом — аптеки, школы, садики, колледжи, университеты, спортивные секции, поликлиники, ТЦ ''Башня'', ТРЦ ''Горки''. Почему это выгодно: Вы экономите главный ресурс — время. Остановка рядом, центр близко, инфраструктура под боком. Никуда не нужно долго ехать. Не упустите! Такие варианты разбирают быстро. Звоните прямо сейчас и забронируйте эту квартиру за собой. Дополнительно оплачивается комиссия с покупателя. Код пользователя: 199084 Номер в базе: 12314943
1/11
3 250 000 ₽
1-к, Победы проспект, 299
Северо-Запад, Калининский район
35 м² · Этаж 9 из 9
Построен в 1989
1к квартиры 36 кв м. + комната 17 кв. м. + кухня 11 кв. м. Санузел совмещенный, в кафеле Арт. 134331526
1/3
9 500 000 ₽
3-к, Гольца, 20
Копейск
81 м² · Этаж 1 из 11
Построен в 2014
Продаётся просторная 3-комнатная квартира, расположенная на первом этаже МКД, в самом центре города. Идеальное решение как для комфортного семейного проживания, так и для организации бизнеса (локация с высокой проходимостью, рядом транспортная развязка и жилые дома — гарантированный поток клиентов). Преимущества: • первый этаж — удобный доступ без лифта, возможность отдельного входа (при использовании под бизнес), • хорошая планировка — изолированные комнаты, достаточно места для семьи или организации рабочего пространства, • развитая инфраструктура района - в шаговой доступности находятся магазины, школы, медицинские учреждения, детские сады, культурно-развлекательные центры и торговые комплексы. Самые ближайшие: • общеобразовательные школы 1, 42 • детские сады 50, 53 • хоккейная школа Картаева А. З. • ДК им. Кирова • торговый комплекс Слава • парк Победы и стадион Химик Без обременений и долгов, в собственности более 10 лет (приобретена у застройщика).
1/26
10 796 100 ₽
2-к, Ленина проспект, 1 стр.
ЧТЗ, Тракторозаводский район
74 м² · Этаж 3 из 17
Новостройка, 2 кв. 2026
Жилой квартал ''4 Ленина'' создан для комфортной и функциональной жизни в городе. Проект в стиле современного конструктивизма предлагает продуманную инфраструктуру и отличное расположение. Удобное расположение: • 7 минут пешком до Площади Революции. • Отличная транспортная доступность, обеспечивающая быстрое сообщение с любым районом. Особенности квартала: Проект состоит из 3 домов, включающих 4 секции переменной этажности (от 6 до 17 этажей). Инфраструктура для жителей: • Закрытые дворы с эффективным зонированием для безопасности и отдыха • Ландшафтный дизайн, разработанный европейским бюро • Сквозные входные группы в едином стиле • Общественные зоны: игровая, гостиная и коворкинг с террасой - дополнительные пространства для работы и досуга • Велолапомойки и помещения для хранения велосипедов/самокатов Широкий выбор планировочных решений, подходящих для комфортного проживания и реализации ваших дизайнерских идей: • Квартиры с высокими потолками • Варианты с теплыми лоджиями, мастер-спальнями и просторными кухнями-столовыми • Квартиры со вторым светом и террасами Стандарты отделки: • Предчистовая — в индустриальных секциях • Черновая — в монолитно-каркасных и кирпичных секциях В шаговой доступности расположена вся необходимая социальная и спортивная инфраструктура: • Парк ''Сад победы'' • Муниципальные и частная школы, 6 детских садов • Взрослая и детская поликлиники • Бассейн, Дворец спорта, областная спортивная школа по хоккею Получите полную консультацию о проекте, планировках и условиях приобретения. Мы поможем подобрать оптимальный вариант и расскажем о действующих программах ипотеки. Свяжитесь с нами, чтобы узнать больше о жизни в квартале ''4 Ленина''
1/26
9 407 300 ₽
2-к, Ленина проспект, 1 стр.
ЧТЗ, Тракторозаводский район
62 м² · Этаж 7 из 17
Новостройка, 2 кв. 2026
Жилой квартал ''4 Ленина'' создан для комфортной и функциональной жизни в городе. Проект в стиле современного конструктивизма предлагает продуманную инфраструктуру и отличное расположение. Удобное расположение: • 7 минут пешком до Площади Революции. • Отличная транспортная доступность, обеспечивающая быстрое сообщение с любым районом. Особенности квартала: Проект состоит из 3 домов, включающих 4 секции переменной этажности (от 6 до 17 этажей). Инфраструктура для жителей: • Закрытые дворы с эффективным зонированием для безопасности и отдыха • Ландшафтный дизайн, разработанный европейским бюро • Сквозные входные группы в едином стиле • Общественные зоны: игровая, гостиная и коворкинг с террасой - дополнительные пространства для работы и досуга • Велолапомойки и помещения для хранения велосипедов/самокатов Широкий выбор планировочных решений, подходящих для комфортного проживания и реализации ваших дизайнерских идей: • Квартиры с высокими потолками • Варианты с теплыми лоджиями, мастер-спальнями и просторными кухнями-столовыми • Квартиры со вторым светом и террасами Стандарты отделки: • Предчистовая — в индустриальных секциях • Черновая — в монолитно-каркасных и кирпичных секциях В шаговой доступности расположена вся необходимая социальная и спортивная инфраструктура: • Парк ''Сад победы'' • Муниципальные и частная школы, 6 детских садов • Взрослая и детская поликлиники • Бассейн, Дворец спорта, областная спортивная школа по хоккею Получите полную консультацию о проекте, планировках и условиях приобретения. Мы поможем подобрать оптимальный вариант и расскажем о действующих программах ипотеки. Свяжитесь с нами, чтобы узнать больше о жизни в квартале ''4 Ленина''

Подбор риелтора

Риелтор поможет купить или продать любую недвижимость

Оставить заявку
7 475 000 ₽
2-к, Ломоносова, 16а
Терема
52 м² · Этаж 6 из 6
Новостройка, сдана
Квартира самой удачной планировки! 49,2 м2 (полная 52,5 м2), просторная студия-кухня 21.7м2 и спальня 16 м2, Ванная 4,6 м2, лоджия 3,3 м2 Самый тихий верхний этаж - такие квартиры в новых домах ценятся больше всего. Комфорт и отсутствие шума от соседей сверху! В проекте Губернаторская школа, будет лучшая в Челябинске Уже построен и работает новый современный детский садик - дворы с ландшафтным дизайном - соседское пространство с камином, барбекю-зоны - спортивный и детские площадки с мягким покрытием - 2 пешеходные набережные, велосипедные и пешеходные лесные тропы, а также амфитеатр для просмотра кино под открытым небом! - тропа здоровья 7 км - в 5 минутах ходьбы карьер с чистейшей водой - уже ходит общественный транспорт На первых этажах жилых домов располагаются коммерческие предприятия, необходимые для комфортной жизни: магазины, аптеки, предприятия общественного питания.
1/26
4 400 000 ₽
2-к, Молодогвардейцев, 58б
22-й микрорайон, Калининский район
54 м² · Этаж 8 из 9
Построен в 1974
Срочная продажа, подобран встречный вариант! Продается видовая 2-комнатная квартира с изолированными комнатами на разные стороны. В квартире просторная гардеробная, светлые комнаты и очень красивый вид со всех окон. Расположение квартиры очень удачное: рядом есть школы, детские сады, клиники и магазины. Все необходимое — в шаговой доступности. Очень красивая прогулочная аллея от проспекта Победы до Братьев Кашириных, по которой можно каждое утро делать пробежку, прогулку. Отличная транспортная доступность: рядом остановки общественного транспорта, откуда можно быстро добраться до любой части города. Квартира продается без обременений. Возможна покупка через ипотеку. Приглашаем на просмотр! Звоните, чтобы договориться о встрече и оценить все достоинства этой квартиры лично.
1/17
4 350 000 ₽
2-к, Комсомольский проспект, 80б
Северо-Запад, Курчатовский район
50 м² · Этаж 9 из 9
Построен в 1978
Продается очень солнечная, светлая, теплая квартира, все окна на юг. Красивый вид из окна. Комнаты изолированные друг от друга, санузел раздельный. В квартире везде стоят качественные евроокна, полы в отличном состоянии (не скрипят). Квартира требует освежения (ремонт старый), но это дает возможность сделать интерьер под себя по цене, ниже рыночной. Документы готовы к оформлению. Звоните!
1/16
3 300 000 ₽
2-к, Копейское шоссе, 3б
Ленинский район
42 м² · Этаж 4 из 5
Построен в 1962
Продается уютная, теплая, тихая, светлая квартира на 4м этаже 5-ти этажного дома. Двухкомнатная квартира, вторая комната разделена на две равнозначные, перепланировка узаконена. Косметический ремонт, заменены: разводка ХГВС, межкомнатные двери, установлены пластиковые окна, застеклен балкон. Оставим мебель, которая на фото. Развитая инфраструктура: рядом магазины, кафе-столовая, пекарня, в доме почтовое отделение. Также рядом стадион, дворец спорта Торпедо. В 10 минутах сквер, школа, детские сады, поликлиника. Хорошая транспортная доступность, 5 минут до автобусных остановок. 2 взрослых собственника. Никто не прописан. Без обременений. Ипотека, мат. капитал, разумный торг. Кадастровый номер 74:36:0324013:237
1/5
3 350 000 ₽
1-к, Островского, 25а
Центр, Курчатовский район
30 м² · Этаж 4 из 5
Построен в 1962
Светлая 1-комнатная квартира на северо-западе Челябинска Уютная квартира с окнами во двор — тихо и спокойно, без шума дорог. Отличный вариант как для проживания, так и под сдачу. Удобное расположение:— остановки транспорта в 5 минутах— рядом школы, детские сады и поликлиника— магазины, аптеки и спортзал в шаговой доступности О квартире:— 4 этаж из 5— площадь 30,7 м²— пластиковые окна, застеклённый балкон— натяжные потолки— продаётся с мебелью Чистая продажа от собственника Без долгов и обременений
1/37
13 550 000 ₽
3-к, Елькина, 91
Центр, Советский район
78 м² · Этаж 18 из 19
Построен в 2022
Арт. 134335026 Идеальная семейная квартира в престижном ЖК ''Альт'' в центре города — светлая, просторная и готовая под чистовую отделку. Отличный вариант для тех, кто ценит качество, комфорт и быстрый выход на сделку. Кратко о квартире: • Общая площадь: 78,1 кв.м. • Гостиная: 34,8 кв.м. — панорамные окна, отличная возможность зонирования • Детская: 16,02 кв.м. (два окна — очень светлая, легко делится на 2 зоны) • Мастер-спальня: 14,13 кв.м. с собственным санузлом 2,97 кв.м., гардеробной 2,51 кв.м. и выходом на лоджию 4 кв.м. • Прихожая: 8 кв.м., квадратной формы с нишей под большой шкаф • Гостевой санузел: 4,16 кв.м. Состояние и преимущества ремонта: • Квартира приобреталась в черновой отделке, выполнен весь черновой этап и идеальная предчистовая отделка. • Сделаны выводы под кондиционеры (в гостиной и мастер-спальне). • Пол и стены выровнены под финишные покрытия. • Полная электропроводка выполнена по дизайнпроекту. • В санузлах установлены инсталляции, предусмотрены теплые полы и гигиенический душ . В гостевом — душевая, в санузле при мастерспальне — полноценная ванна. • Окна выходят на восток — много утреннего света. • Высокий этаж + панорамные окна = прекрасный вид на город. О доме и инфраструктуре комплекса: • Монолитнокирпичный дом — отличная шумо и теплоизоляция. • Современные инженерные решения: горизонтальная разводка, регуляторы давления, индивидуальные тепловые счётчики. • Подземный паркинг (свое парковочное место рядом с выходом из лифта — удобно и безопасно). • Кладовые помещения, колясочные. • Закрытая охраняемая территория с ландшафтным дизайном, детскими и спортивными площадками. • Уютный холл, круглосуточный консьерж, видеонаблюдение. Юридическая информация: • Два совершеннолетних собственника. • Квартира приобреталась от застройщика по ДДУ. • Материнский капитал при покупке не использовался. • Гарантируем быстрый выход на сделку и передачу ключей сразу после расчетов. Дополнительно: • Собственное парковочное место на подземной парковке (продаётся отдельно — обсуждаем). • По запросу предоставим дополнительные фото и видеопрезентацию квартиры и территории. • Организуем показ в любое удобное для вас время. Звоните или пишите — ответим оперативно, договоримся о просмотре и пришлём все материалы.
1/39
15 000 000 ₽
2-к, 250-летия Челябинска, 48
Калининский район
62 м² · Этаж 7 из 19
Построен в 2019
Арт. 134335084 Идеальная квартира для семьи в престижном жилом комплексе! Готовность к проживанию без дополнительных вложений - всё для гармонии и уюта продумано до мелочей! Основные характеристики: Общая площадь 62,3 кв.м., Гостиная 13,1 кв.м., Детская 16,4 кв.м., Спальня 18,5 кв.м. с выходом на лоджию, Просторная прихожая, Все комнаты изолированы друг от друга коридором, Полностью укомплектована мебелью и техникой. Дополнительно: На подземной парковке имеется своё парковочное место. Расположено почти сразу при входе на парковки из лифта - удобно и безопасно. Продажу машиноместа также готовы обсуждать. Почему эта квартира Ваше лучшее решение: • Простор и комфорт: удачная планировка даёт ощущение свободы и порядка, где каждый угол продуман для удобства, • Свет и тепло: большие панорамные окна наполняют пространство дневным светом. Окна квартиры выходят на самую благоприятную сторону света - восточную, Энергия уюта: ремонт выполнен в светлых тонах, благодаря чему создается атмосфера спокойствия и положительных эмоций, Видовые характеристики: благодаря высокому этажу и панорамным окнам, открывается шикарный вид на город. О квартире: В прихожей вместительные встроенные шкафы для верхней одежды, обуви, хранения сезонных вещей, а также для бытовых предметов (пылесос, гладильная доска, сушилка и т.п.). Установлен датчик движения: свет автоматически включается при входе и отключается через заданное время. • Гостиная оборудована высококачественным кухонным гарнитуром известной марки ''Мария'' и бытовой техникой известных немецких брендов (и что не маловажно именно немецкого производства): микроволновка NEFF, индукционная панель и духовой шкаф AEG, посудомоечная машина Bosch, а также двухдверным холодильником LG, мойкой с двумя отсеками, установлены измельчитель отходов и фильтр для воды. • Детская комната очень продуманно разделена на зоны для учебы, отдыха и мест хранения вещей и одежды: письменный стол расположен вдоль окна, что добавляет естественного света над учебной зоной. Стол разделен на зону с компьютером и свободное пространство. Установлены два шкафа - один для повседневной одежды, второй - для школьной и спортивной формы. Полноценная односпальная кровать размером 200см*90см, с подъемным механизмом и матрасом Askona (матрас в идеальном состоянии). При этом пространство комнаты легко можно разделить для двоих детей. Взрослая спальня с выходом на просторную лоджию с витражным остеклением. В спальне установлен вместительный шкаф, разделенный на две зоны, кровать (размер спального места 160см*200см) с подъёмным механизмом и качественным матрасом Askona (матрас в идеальном состоянии). Лоджия оснащена светом, оборудована дополнительным местом для кондиционера. Площадь лоджии позволяет оборудовать зону релакса и, благодаря панорамному остеклению, наслаждаться шикарными видами на город. Санузел оборудован полноценной ванной, широкой раковиной, очень качестве
1/25
14 300 000 ₽
4-к, Братьев Кашириных, 122а
Северо-Запад, Калининский район
125 м² · Этаж 13 из 17
Построен в 2007
Прoдaю бoльшую, пpостoрную, тихую четырeхкoмнатную кваpтиpу с большoй кухнeй. Бoльшoй xoлл c встроенными шкафaми, гостинaя 22 м2, кухня 19м2, 2 комнaты пo 13,5 и 15,5 м2, cпaльня c гaрдеpoбной комнатoй 25,2 м2 пoзвoлят свoбодно рaзмeститься и нaслaдитьcя уютoм этой прекpaснoй квaртиры. B вaннoй комнaте 9,2 м2 pаспoлoжeна большaя вaнна с функциями душевой кабины, унитаз и биде. В туалете есть водонагреватель. В санузлах теплый пол. Дом оснащен 2 лифтами - грузовой и пассажирский, есть консьерж, территория дома огорожена, что позволяет всегда удобно припарковать автомобиль. Дом расположен во дворе, при этом в шаговой доступности вся инфраструктура района - магазины, аптеки, банки, кафе. В микрорайоне есть школа и детский сад, рядом расположен 97 лицей. Развитая инфраструктура, остановки транспорта ул. 40-летия Победы, ул. 250 лет Челябинску, ул.Чичерина, до центра на машине - 15 минут, все это дает возможность жить счастливо и комфортом. Звоните, приезжайте, смотрите... покупайте!
1/21
11 700 000 ₽
3-к, Университетская Набережная, 64
Академ Риверсайд, Калининский район
77 м² · Этаж 2 из 21
Построен в 2014
В квартире остаётся вся мебель (обувница, шкаф в прихожей, встроенный шкаф-гардеробная, дорогой кухонный гарнитур, вся фурнитура Blum, новая такая кухня сейчас стоит 600-700 т. р., тумба под ТВ, встроенный шкаф в спальне, кровать, туалетный столик с пуфиком, две прикроватные тумбочки, шкаф в детской комнате, компьютерный стол), а также вся техника ( холодильник side-by-side Samsung, варочная поверхность Bosch, вытяжка Samsung, духовой шкаф Siemens, микроволновка Siemens, посудомоечная машина Kuppersberg, стиральная машина Bosch, кондиционеры в гостиной и спальне). Уложен новый ламинат 33 класса во всей квартире, установлены новые межкомнатные двери, положен керамогранит в туалете, ванной и прихожей, частично поклеены новые обои. После ремонта в квартире никто не жил. Дорогая входная дверь Аргус, на кухне тёплый пол, в туалете установлена инсталляция Grohe. Во дворе дома новая детская площадка. Из окна видна школа. Я единственный собственник с момента ввода дома в эксплуатацию в 2015 году. Возможна ипотека, мат. капитал, вся сумма в договоре. Риелторов просьба не беспокоить.
1/11
3 950 000 ₽
1-к, Калинина, 11
Копейск
40 м² · Этаж 4 из 12
Построен в 2008
ПРОДАЮ ПРОСТОРНУЮ И УЮТНУЮ КВАРТИРУ В ЦЕНТРЕ ГОРОДА! Основные преимущества: Расположена в новом микрорайоне, рядом школа и детский садик — всё необходимое для комфортной жизни. Выполнен косметический ремонт — квартира готова к комфортному проживанию. Просторная гардеробная — идеальное место для хранения вещей. Комфортный этаж — удобство передвижения и отсутствие лишней нагрузки. Один взрослый собственник — юридически чистая сделка. Создайте уютный семейный очаг в просторной и светлой квартире в центре города!
1/9
5 600 000 ₽
2-к, Ворошилова, 33б
6-й микрорайон, Курчатовский район
55 м² · Этаж 1 из 5
Построен в 1989
Продается уютная двухкомнатная квартира серии брежневка. Окна выходят во двор. В квартире остается кухонный гарнитур и встроенный шкаф в коридоре. В шаговой доступности детские сады (их в микрорайоне 4), школа, супермаркеты, пункты выдачи маркетплейсов, ТК Северо-западный, Теорема, Фокус, остановки общественного транспорта. Один взрослый собственник, без обременений, никто не зарегистрирован, возможна ипотека.
1/21
5 300 000 ₽
1-к, Героя России Кислова С.А. набережная, 3
Центр, Центральный район
25 м² · Этаж 22 из 24
Построен в 2025
Продаю НОВУЮ СТУДИЮ с шикарным видом из окна в мкр. ''Западный луч''! Комфортная планировка. Прекрасный вид с 22 этажа! Локация и комплекс: Комплекс БИЗНЕС-класса! Расположен в Центральном районе, на пересечении улиц Труда и Энгельса, с очень развитой инфраструктурой. Всего в 5 минутах пешком ШИКАРНАЯ набережная реки Миасс, идеальное место для неспешных прогулок или занятий спортом. В шаговой доступности находятся остановки общественного транспорта. В непосредственной близости: • ТК и ПАРК с кинотеатрами • ТЦ с крупнейшим в городе концертным залом • Зоопарк • Ледовый Дворец • Развлекательный комплекс • Гостиница • Супермаркет • Фирменные магазины одежды • Магазин электроники • Рестораны и кафе • Отделения банков • Медицинский центр • МФЦ • Турфирмы Придомовая территория с контролем доступа, благоустроена местами для отдыха и прогулок, спортивными и детскими площадками. Имеется подземный и наземный паркинг. Вся территория двора, а также детские площадки, входные группы, лифты, холлы и паркинги находятся под круглосуточным видеонаблюдением. Квартира находится в ипотеке. Прописанных в квартире нет. Не упустите возможность стать владельцем этой уютной студии с отличной ликвидностью! Дополнительно оплачивается комиссия с покупателя. Код пользователя: 148185 Номер в базе: 10674469
1/12
4 000 000 ₽
1-к, Комсомольский проспект, 47
6-й микрорайон, Курчатовский район
32 м² · Этаж 7 из 9
Построен в 1982
Продается уютная, светлая квартира с окнами во двор, что обеспечивает тихую атмосферу и защищает от городского шума. -**Квартира полностью готова к проживанию. В жилой комнате установлен кондиционер. В ванной комнате установлен бойлер, что обеспечивает бесперебойную подачу горячей воды круглый год. - **Удобная гардеробная**: В квартире имеется просторная гардеробная, позволяющая эффективно организовать хранение вещей. - **Балкон на всю длину квартиры**: Приятным дополнением является балкон, который тянется на всю длину квартиры. Один взрослый собственник. Эта квартира станет отличным выбором как для одного человека, так и для небольшой семьи, предлагая все необходимые удобства и комфорт. Не упустите шанс стать владельцем такого компактного и удобного жилья! Звоните и приезжайте на просмотр, помогу с одобрением ипотеки на выгодных условиях. Дополнительно оплачивается комиссия с покупателя. Код пользователя: 199287 Номер в базе: 12290744
1/18
3 650 000 ₽
1-к, Комсомольский проспект, 43
2-й микрорайон, Курчатовский район
30 м² · Этаж 8 из 9
Построен в 1973
Покупай сейчас - плати потом! На данный объект доступна рассрочка на выгодных условиях Продаётся Светлая и уютная квартира в развитом районе на Северо-западе. О КВАРТИРЕ Объект предлагается с рациональной планировкой: изолированная кухня площадью 8 кв. м, предусмотрена кладовка для организации гардеробной зоны. В квартире eсть бaлкoн, котoрый станeт отличным мecтом для oтдыха.В комнате установлен вместительный шкаф. Oкнa выxoдят во двор, что oбеспечивaет тишину и cпокoйствие. Во дворе расположена спортивная площадка и открытая парковка. ИНФРАСТРУКТУРАРайон обладает развитой инфраструктурой. В шаговой доступности находятся торговые центры ''Теорема'' и ''Фокус'', Северо-западный рынок, общеобразовательные школы, детские сады и фитнес-центры. Район отличается удобной транспортной развязкой, что обеспечивает быстрый выезд в другие части города. В КВАРТИРЕ ОСТАЁТСЯ: - кухонный гарнитур - шкаф - плита - холодильник ДОКУМЕНТЫ 1 взрослый собственник. Звоните и приезжайте на просмотр в удобное время, помогу с одобрением ипотеки на выгодных условиях. Если вам понравился наш вариант, но Вы ещё не продали своё жильё, поможем с поиском Покупателя! Дополнительно оплачивается комиссия с покупателя. Код пользователя: 190064 Номер в базе: 12312141
1/28
7 500 000 ₽
2-к, Университетская Набережная, 85
Академ Риверсайд, Калининский район
56 м² · Этаж 7 из 18
Построен в 2018
Вашему вниманию предлагается отличный вариант квартиры с современной планировкой Студия+2 спальни в динамично развивающемся микрорайоне Академ Riverside по адресу: ул Университетская Набережная д.85. Академ Riverside-инновационный проект, крупный жилой район, состоящий из шести больших микрорайонов, представленных современными высотными домами с красивыми фасадами и новыми удобными планировками. Квартира общей площадью 56,4 кв.м. расположена на 7 этаже 18 этажного дома серии ''Таганай'', построенного в 2018 году. Серия ''Таганай'' - это эргономичные планировки,позволяющие максимально эффективно использовать жилое пространство в сочетании с повышенной теплоэффективностью. Два скоростных лифта грузоподъемностью до 1000 кг расположены в центральной части подъезда и не имеют смежных стен с квартирой. В квартире выполнен косметический ремонт. Комнаты в квартире раздельные 16,4 кв.м. и 8,7 кв.м. Кухня-студия 18 кв.м. В квартире три балкона, а это значит что у вас будет много дополнительного места для хранения вещей. Окна в квартире выходят на разные стороны, во двор и на улицу. Санузел раздельный. Лифт опускается до нулевого этажа. Дружелюбные и добропорядочные соседи. Двор и вся придомовая территория находится под видеонаблюдением. Благоустроенный двор с современной детской площадкой. Расположение дома удачно сочетается с уже существующей развитой инфраструктурой, транспортной доступностью и экологичностью проживания. Во дворе детский сад. В шаговой доступности образовательный центр ОЦ-7, с множеством кружков и секций для детей, Челябинский государственный университет (ЧелГУ) и реликтовый сосновый бор с главным городским парком отдыха им. Ю.А. Гагарина. Один взрослый собственник с момента постройки дома. Квартира без долгов и обременений. Материнский капитал не использовался. Любая форма оплаты! Документы готовы к продаже. Ключи в день полных расчетов. Звоните, организую показ в удобное для Вас время! Арт. 129087037
1/39
13 500 000 ₽
3-к, Академика Королева, 50
Тополиная аллея, Центральный район
82 м² · Этаж 4 из 9
Построен в 2011
Предлагаем к покупке трехкомнатную квартиру в Центральном районе, микрорайон ''Тополиная аллея'', по адресу ул. Академика Королева 50! Квартира общей площадью 82,8 кв.м. расположена на комфортном 4 этаже 9 этажного кирпичного дома 2011 года постройки. Кирпичные дома обладают рядом преимуществ, среди которых можно выделить: Звукоизоляция-Эффективно снижают уровень внешнего шума, Тепловая инерция и микроклимат- медленно нагреваются и медленно остывают. Летом у вас в квартире будет прохладно, а зимой тепло! В квартире выполнен качественный ремонт, установлены натяжные потолки, межкомнатные двери, поклеены обои, на полу ламинат, установлены биметаллические радиаторы, надежная входная дверь. Эргономичная планировка квартиры включает в себя: просторную кухню 14,9 кв.м., зал-гостиную 31 кв.м. с выходом на застекленный облагороженный балкон, детскую 14,6 кв.м., спальню 14 кв.м с выходом на балкон, вместительную гардеробную и два санузла. Окна выходят на разные стороны, что обеспечивает хорошее проветривание квартиры. Отличные, дружные соседи! Хорошая управляющая компания ''Тополинка'' Благоустроенный двор под видеонаблюдением с современной детской площадкой. Большое количество парковочных мест для автомобиля. Новым собственникам остается вся техника и мебель что изображена на фото, вам остается взять только свои личные вещи! Рядом с домом развитая инфраструктура: в шаговой доступности все необходимые продовольственные и промтоварные магазины, гипермаркет ''Лента'', аптеки, поликлиника ''Полимедика'', '' Медицинский центр ''Лотос'', Детская поликлиника 1, тренажерные залы, пункты выдачи товаров, кафе, рестораны, сквер с фонтаном и прогулочной зоной. Многопрофильный лицей148, в пяти минутах ходьбы Детский сад 23, в пяти минутах езды ЧелГУ. Удобная транспортная развязка, можно уехать в любую точку города, как на своей машине, так и на общественном транспорте. Близость остановки общественного транспорта. 1 взрослый собственник с момента постройки дома, приобретали у застройщика. Квартира без обременений и долгов, Без перепланировок. Материнский капитал не использовался. Быстрый выход на сделку. Ключи в день полных расчетов! Звоните, организую показ в удобное для Вас время! Арт. 126905204
1/11
4 850 000 ₽
1-к, Кожевникова, 2
Копейск
35 м² · Этаж 7 из 10
Построен в 2013
Продается уютная студия с косметическим ремонтом на 7 этаже кирпичного дома, построенного в 2013 году. Дом расположен в центральной части города. Просторная жилая зона площадью 25 м² - это прекрасное пространство для отдыха. В квартире совмещенный санузел в кафеле, балкон 6 м2, застеклен. Дом оснащен пассажирским и грузовым лифтами, а также открытой парковкой во дворе. Для детей предусмотрена детская площадка. Квартира находится в районе с развитой инфраструктурой, что делает проживание здесь комфортным и удобным. В шаговой доступности школа 6, автовокзал, рынок Янтарь, площадь Трудовой Славы. В квартире частично остается мебель и техника: кухонный гарнитур, шкафы, стенка-горка, электроплита. Квартира подходит под под условия семейной ипотеки на вторичный рынок. Помощь при оформлении. Разумный торг конкретному покупателю. Просмотр по предварительной договоренности. Звоните! Не упустите свой шанс.
1/31
7 700 000 ₽
2-к, Победы проспект, 322
2-й микрорайон, Курчатовский район
55 м² · Этаж 5 из 9
Построен в 1973
ЗАЕЗЖАЙ И ЖИВИ В КВАРТИРЕ МЕЧТЫ !!! Продается ШИКАРНАЯ 2-комнатная квартира на комфортном 5 этаже с комнатами на разные стороны, где каждая деталь говорит о безупречном вкусе и высоком качестве. Ремонт выполнен с использованием исключительно дорогих и натуральных материалов. Продуманная до мелочей планировка, создающая атмосферу уюта и комфорта По всей квартире натяжные потолки с точечными светильниками и стильными люстрами, установлены новые евроокна, межкомнатные двери, входная надежная дверь фирмы АРГУС. Санузел выполнен с использованием современного керамогранита, инсталляция, акриловая ванна, тропический душ, электрический полотенцесушитель и зеркало с подсветкой. Заменены все трубы и электрика. Новые счетчики на воду и электричество. Имеется вместительная гардеробная. На полу во всей квартире уложен качественный кварцвинил. Просторный,теплый, застекленный стеклопакетами балкон. В ПОДАРОК новым жильцам остается новый многофункциональный кухонный гарнитур,вытяжка, плита, кондиционер,водонагреватель, встроенный шкаф в прихожей. Квартира полностью готова к проживанию и никаких дополнительных вложений не требуется. Удобное расположение в районе с развитой инфраструктурой: школы, детские сады, аптеки и банки , магазины и супермаркеты. Для прогулок и отдыха рядом парк имени Курчатова. В шаговой доступности остановки общественного транспорта. Для ВАС, БЕСПЛАТНОЕ юридическое сопровождение сделки. БЕЗОПАСНЫЕ расчеты и помощь в оформлении ВЫГОДНОЙ ипотеки. Долгов и обременений нет. Один взрослый собственник и НИКТО не прописан. Чистая продажа без встречных подборов. ЛЮБАЯ форма оплаты (ипотека, в том числе военная , все виды сертификатов, материнский капитал и т.д.) Покажем квартиру в удобное для вас время. Документы ГОТОВЫ! Быстрый выход на СДЕЛКУ и передача ключей. Рады будем ответить на все ваши вопросы. Звоните прямо сейчас! Реальному покупателю ХОРОШИЙ ТОРГ! Это не просто квартира, ЭТО ВАШ НОВЫЙ УРОВЕНЬ ЖИЗНИ ! Приезжайте и убедитесь сами!!! Обращайтесь если вам, нужно ВЫГОДНО продать ВАШУ недвижимость! Номер объекта: #1/542101/23208
1/12
7 500 000 ₽
3-к, Молодогвардейцев, 61
Бабушкина пос., Калининский район
65 м² · Этаж 5 из 9
Построен в 1981
Уютная светлая квартира с раздельными комнатами в районе с развитой инфраструктурой. В шаговой доступности остановки общественного транспорта, множество сетевых магазинов, во дворе общеобразовательный центр N1, рядом школа 104, 25, детские сады 435, 57., больница скорой помощи N 3, поликлиники, медицинские центры. Через дорогу главный корпус Челгу, строится футбольный манеж с крытыми и уличными футбольными полями. В пешей доступности Парк им Гагарина. Во дворе детские и спортивные площадки, много парковочных мест возле дома. Комнаты раздельные на разные стороны: восток/запад. Установлены пластиковые окна, межкомнатные двери, поменяна электропроводка, большая лоджия застеклена пласт. окнами, с/узел раздельный-кафель. Остается вся мебель. 1 взрослый собственник, в собственности более 20 лет, без долгов и обременений, чистая продажа.
  • 9
  • 10
  • 11
  • 12
  1. Недвижимость в Челябинске
  2. Продажа
  3. Квартиры
  4. 8679 объявлений

Может быть полезно

Ипотека

Узнайте за 10 минут, какой кредит вам одобрят банки

Подбор риелтора

Риелтор поможет купить или продать любую недвижимость

Продажа квартир в Челябинске
  • по районам
  • Калининский район
  • Курчатовский район
  • Ленинский район
  • Металлургический район
  • Советский район
  • Тракторозаводский район
  • Центральный район
По районам
  • Парковый-2
  • 4-й Академ Риверсайд
  • Бакал
  • 56-й
  • 1-й Академ Риверсайд
  • Аул
  • Курчатовский
  • Калининский
  • Тракторозаводский
  • Советский
  • 29-й
  • 57-й
  • Ленинский
  • 3-й Академ Риверсайд
  • 55-й
  • Металлургический
  • Центральный
По субъектам области
  • Кременкульское с/пос
  • Челябинский городской округ
  • Копейск
  • Сосновский муниципальный округ
  • пос. Терема
  • пос. Пригородный
  • Миасский городской округ
  • с. Сыростан
  • Златоуст
  • Чебаркульский район
  • Челябинская область
  • пос. Пригородный
  • Миасс
  • Магнитогорск
  • Чебаркуль
  • пос. Западный
Похожий тип квартиры
  • Все квартиры
  • Многокомнатные
  • 3-комнатные
  • 4-комнатные

Некоторые материалы настоящего раздела могут содержать информацию, запрещенную для детей, не достигших шести лет.

Информация о возрастных ограничениях в отношении информационной продукции, подлежащая распространению на основании норм Федерального закона «О защите детей от информации, причиняющей вред их здоровью и развитию».

О компанииСправочный центрВакансииПрайс-листНовый DomChel.ru
© ООО «Н1.РУ»  Правила использования

Некоторые материалы настоящего раздела могут содержать информацию, запрещенную для детей, не достигших шести лет.

Информация о возрастных ограничениях в отношении информационной продукции, подлежащая распространению на основании норм Федерального закона «О защите детей от информации, причиняющей вред их здоровью и развитию».

Новостройки
Студии
Однокомнатные
Двухкомнатные
Трехкомнатные
Четырехкомнатные
Многокомнатные
Каталоги
Выделение цветом
Спецпредложение
Топ
Турбо
Вторичка
Однокомнатные
Комнаты
Студии
Коттеджи
Дома
Аренда недвижимости
Квартиры
Комнаты
Студии
Коттеджи
Дома
Города
Архангельск
Екатеринбург
Красноярск
Новосибирск
Омск
Пермь
Тюмень
Челябинск
Все города
Карта сайта
 Купите квартиру в Челябинске - 8 679 объявлений в каталоге жилой недвижимости на N1. Средняя цена продажи или покупки жилья составляет 8,4 млн ₽. Покупайте квартиры недорого на сайте N1.ru.