Дом, Космонавтов, 19у Показать на карте
Миасское
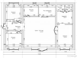
Проект дома с большим окнами ! Участок с подрядомХарактеристики:- 94м2 полезной площади- надежный фундамент с большим запасом прочности и теплыми полами по всему периметру- мягкая отмостка- газоблок ИНСИ 300мм- армопояс- окна с двухкамерным стеклопакетом и качественной фурнитурой. Ламинация под цвет кровли- входная дверь с терморазрывом- перекрытие утеплено базальтовой крошкой 200мм- кровля профилированный лист толщиной 0,4мм ГОСТ- установлены водоотливы- фасад дома закрыт теплопанелями толщиной 50мм с декоративным покрытием- в доме разведены все коммуникации (вода, слив, электричество)- установлен электро котел 9кВт для теплого пола и вся система отопления- стены оштукатуреныДом получается теплым, светлым и максимально функциональным. Рассчитан на семью с 2-3 детьми. А площадь пятна застройки позволяет разместить дом даже на участке от 5 соток!За дополнительную оплату можем прокачать данный дом заземлением.Пишите в сообщениях или звоните по телефону для записи на просмотр как готовых, так и строящихся домов от компании Житеево*цена товара указана за ''Базовую'' комплектацию. Стоимость полной комплектации, указанной в описании, вы можете уточнить в отделе продаж
94 м2
1 этаж
- Показать контакты
- Добавить в избранное
94 м2
1 этаж
7 000 000
74 468 /м2
