3-к, Труда, 5 стр. Показать на карте
Центральный район, Центр
Челябинск, Западный луч
Микрорайон ''Западный луч'' - монолитно-каркасные дома, расположенные на пересечении ул. Труда и Энгельса. Современные высотки стали настоящим украшением самого сердца города.Важные особенности микрорайона: современные технологии строительства, благоустроенная дворовая территория с контролем доступа, консьерж-сервис, наличие подземного и наземного паркинга, собственная управляющая компания, свободные планировки с возможностью объединения, коммерческие помещения.
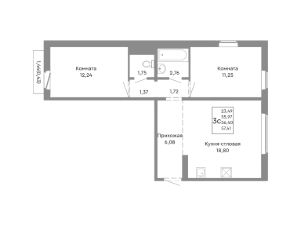
74 м2
17 / 23 этаж
Монолит
- Показать контакты
- Добавить в избранное
74 м2
17 / 23 этаж
Монолит
13 400 000
179 144 /м2
Новостройка,
II-2025
II-2025
