Застройщик - Специализированный застройщик «ЖК на Кулибина», ООО. Проектная декларация опубликована на сайте наш.дом.рф
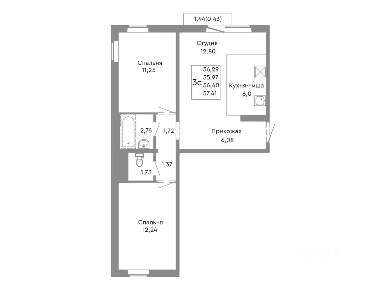
Продаётся 3-комнатная квартира в строящемся доме (Дом 1), срок сдачи: II-кв. 2027, общей площадью 56.4 кв.м., на 9 этаже. Современная жизнь - это умение выбирать только то, что действительно важно. НИКС Лайн на Танкистов - не просто дом, а рациональный выбор для тех, кто ценит пространство без переплат, время без ремонта и спокойствие без шума.