Застройщик - Специализированный застройщик «НИКС ЛАЙН 2», ООО. Проектная декларация опубликована на сайте наш.дом.рф
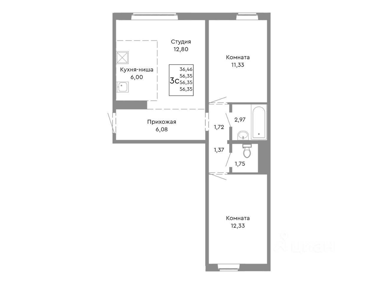
Продаётся 3-комнатная квартира в строящемся доме (Дом 1.8а), срок сдачи: I-кв. 2027, общей площадью 56.35 кв.м., на 2 этаже. Новый жилой комплекс ''НИКС Лайн на Ярославской'' от группы компаний ''НИКС'' расположен по адресу: г. Челябинск, по ул. Ярославская.