Если цена в объявлении изменится, мы сразу сообщим вам об этом на электронную почту.
Нажимая «Подписаться», вы соглашаетесь с правилами.
продам торговые площади, Энгельса, 3812 500 000 ₽
4 янв
Дата публикации объявления
Обн. 12 апр
Дата обновления объявления
6
Количество просмотров (+ просмотры за сегодня)
96 080 ₽/м²
Параметры
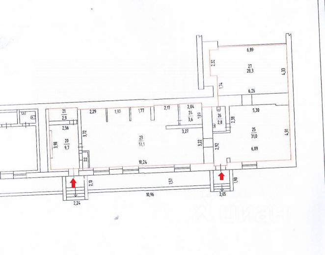
Общая площадь130,1 м2
ЭтажЦоколь
Предлагаем торговое помещение 130.1 кв.м. на первой линии улицы Энгельса.
Предлагаем торговое помещение 130.1 кв.м. на первой линии улицы Энгельса.
Планировка: +3 просторных торговых зала +2 входа +отдельный кабинет +санузел (возможность вывода 2х мокрых точек под 2 санузла) +подсобное небольшое помещение +цокольный этаж высокий, с полноценными окнами
Отделка: + выполнен хороший ремонт с использованием керамогранита + красивый и хорошо отремонтированный санузел + яркое светодиодное освещение
Расположение: +центр города- активный автомобильный и пешеходный трафик +транзитная улица, по которой едут из района в район, поэтому в это место ''заехать по пути'' большей части населения города +большое место для фасадной рекламы/вывески +наземная парковка перед помещением