Если цена в объявлении изменится, мы сразу сообщим вам об этом на электронную почту.
Нажимая «Подписаться», вы соглашаетесь с правилами.
продам 2-к, Энгельса, 545 200 000 ₽
4 янв
Дата публикации объявления
Обн. 9 мая
Дата обновления объявления
46
Количество просмотров (+ просмотры за сегодня)
108 787 ₽/м²
Чистая продажа
Термин "Чистая продажа" означает, что в квартире никто не прописан или
есть куда выписаться и вывезти вещи. Это лучший вариант для покупателя.
Вероятность срыва сделки минимальна.
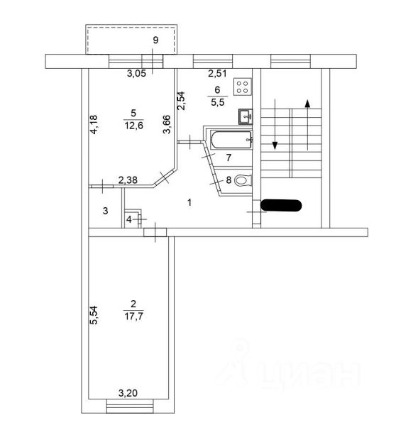
Продаётся двухкомнатная квартира площадью 47.8 квадратных метров. Кирпичный, капитальный дом не на проезжей части, содержится в хорошем состоянии. Тихий, чистый подъезд, хорошие соседи.
Жилая площадь - 30.3 квадратных метра. Комнаты раздельные, выходят на восток и запад. Кухня - 5.5 квадратных метров с хорошей газовой плитой. Раздельный санузел. Есть принудительная вентиляция с автовыключением. В квартире достаточно места для хранения: встроенный шкаф в коридоре, кладовка (потенциальная гардеробная) в спальне, антресоли в коридоре и на кухне.
В комнатах - натяжной потолок, ламинат по всему полу. Туалет, ванная и фартук кухни полностью отделаны плиткой. Балкон застеклен.
Из окон открывается приятный вид на двор, где также расположена новая детская площадка.
Продаётся двухкомнатная квартира площадью 47.8 квадратных метров. Кирпичный, капитальный дом не на проезжей части, содержится в хорошем состоянии. Тихий, чистый подъезд, хорошие соседи.
Жилая площадь - 30.3 квадратных метра. Комнаты раздельные, выходят на восток и запад. Кухня - 5.5 квадратных метров с хорошей газовой плитой. Раздельный санузел. Есть принудительная вентиляция с автовыключением. В квартире достаточно места для хранения: встроенный шкаф в коридоре, кладовка (потенциальная гардеробная) в спальне, антресоли в коридоре и на кухне.
В комнатах - натяжной потолок, ламинат по всему полу. Туалет, ванная и фартук кухни полностью отделаны плиткой. Балкон застеклен.
Из окон открывается приятный вид на двор, где также расположена новая детская площадка. Рядом: детский сад, школа, техникум, университеты, фитнес-зал и бассейн ''Рекком''. Есть несколько скверов неподалеку. 20 минут ходьбы как до центра города, так и до городского бора.
Хорошая транспортная развязка: с остановки ''Доватора'' можно уехать в любую часть города.
Один собственник (не пенсионер). Прописанных - нет. Маткапитал - не использовался. Не нужно ждать переселения, ключи - в день сделки. Возможен небольшой, разумный торг.