Если цена в объявлении изменится, мы сразу сообщим вам об этом на электронную почту.
Нажимая «Подписаться», вы соглашаетесь с правилами.
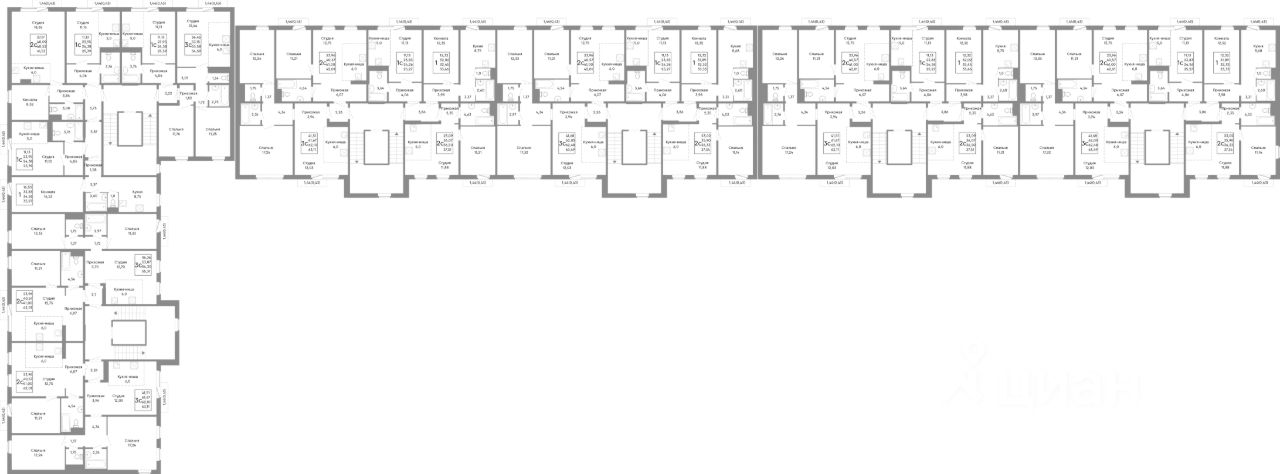
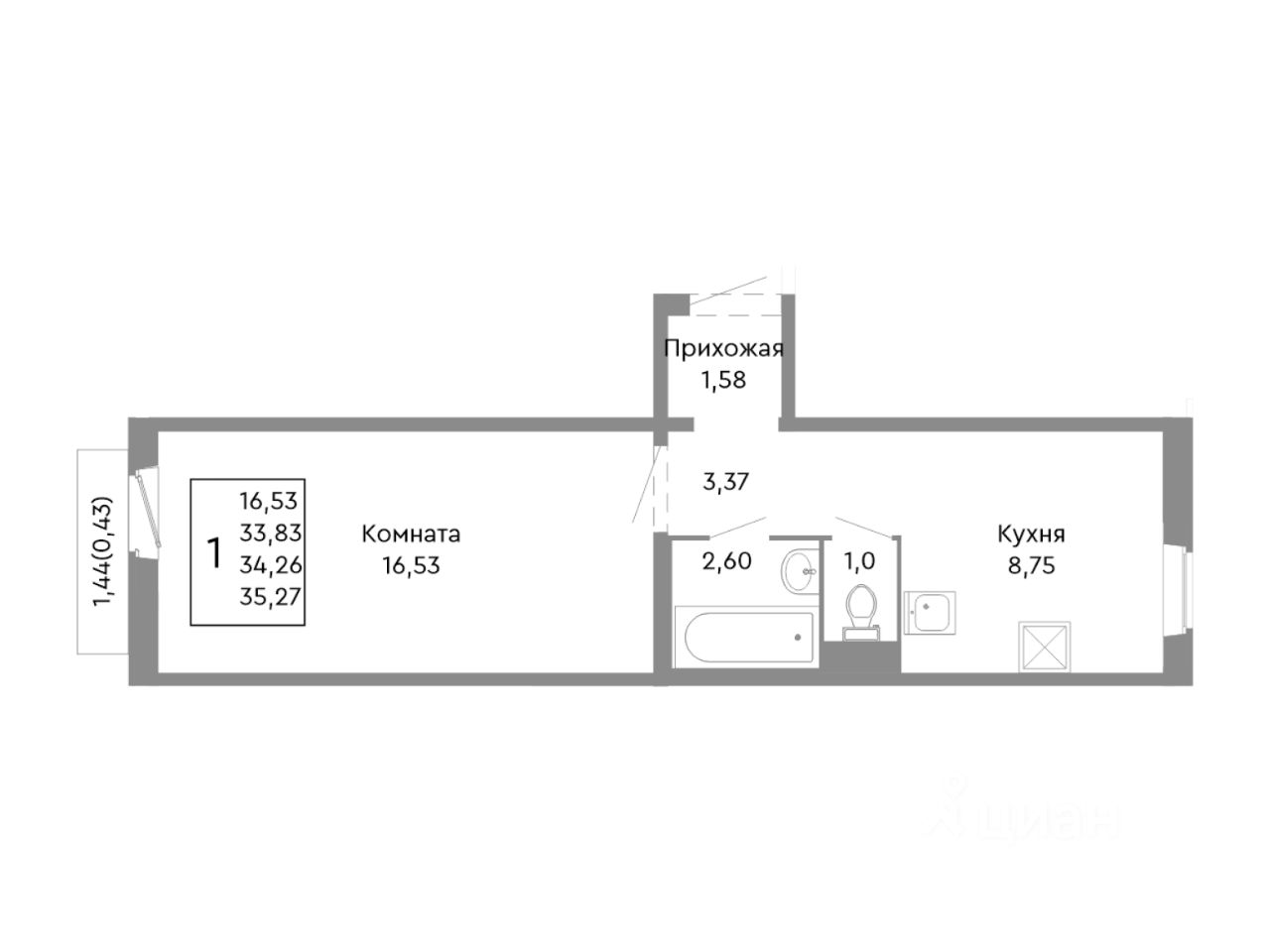
продам 1-к, Нефтебазовая, гп 124 882 050 ₽
4 дек
Дата публикации объявления
Обн. вчера
Дата обновления объявления
4
(+1)
Количество просмотров (+ просмотры за сегодня)
Спецпредложение
Турбо x8
142 500 ₽/м²
Чистая продажа
Термин "Чистая продажа" означает, что в квартире никто не прописан или
есть куда выписаться и вывезти вещи. Это лучший вариант для покупателя.
Вероятность срыва сделки минимальна.