Если цена в объявлении изменится, мы сразу сообщим вам об этом на электронную почту.
Нажимая «Подписаться», вы соглашаетесь с правилами.
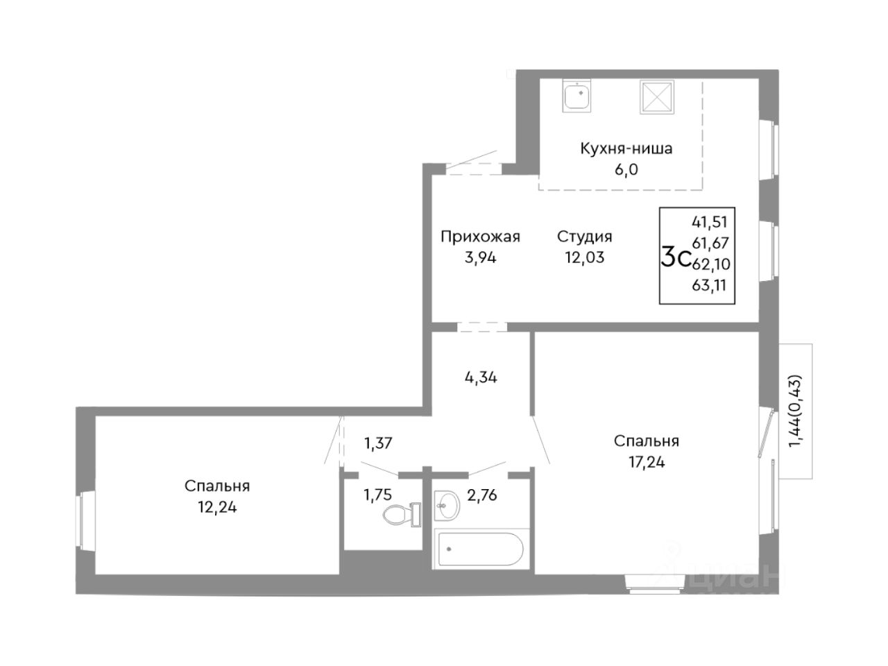
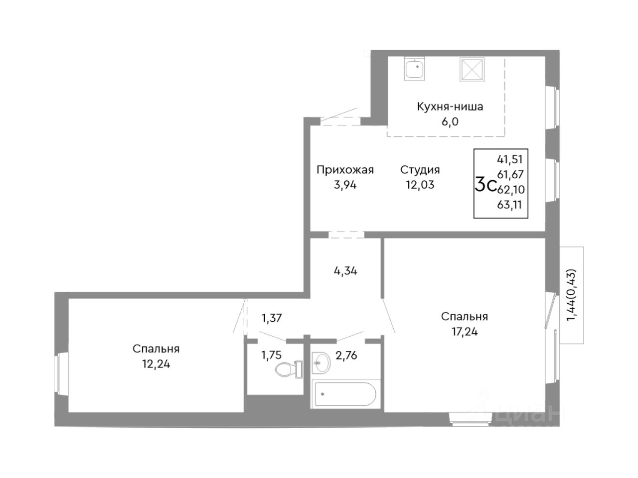
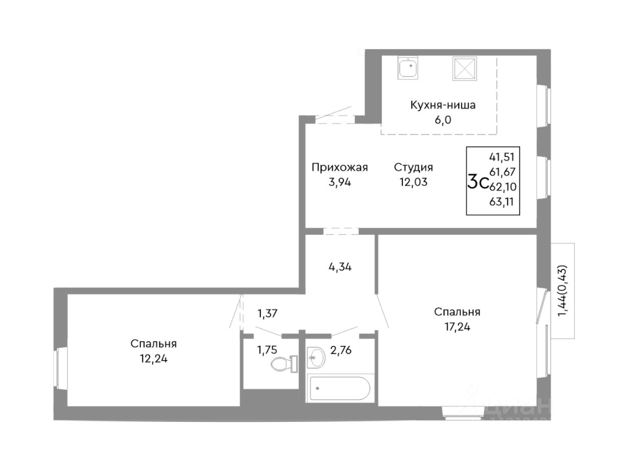
продам 3-к, Нефтебазовая, гп 127 793 550 ₽
4 дек
Дата публикации объявления
Обн. 11 мая
Дата обновления объявления
2
Количество просмотров (+ просмотры за сегодня)
Спецпредложение
Турбо x8
125 500 ₽/м²
Чистая продажа
Термин "Чистая продажа" означает, что в квартире никто не прописан или
есть куда выписаться и вывезти вещи. Это лучший вариант для покупателя.
Вероятность срыва сделки минимальна.