Если цена в объявлении изменится, мы сразу сообщим вам об этом на электронную почту.
Нажимая «Подписаться», вы соглашаетесь с правилами.
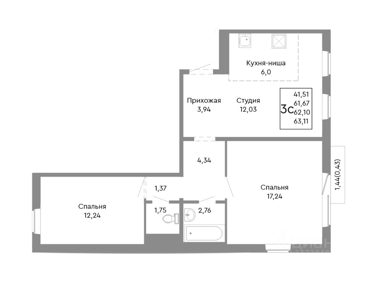
продам 3-к, Нефтебазовая, гп 127 483 050 ₽
4 дек
Дата публикации объявления
Обн. 7 мая
Дата обновления объявления
4
Количество просмотров (+ просмотры за сегодня)
120 500 ₽/м²
Чистая продажа
Термин "Чистая продажа" означает, что в квартире никто не прописан или
есть куда выписаться и вывезти вещи. Это лучший вариант для покупателя.
Вероятность срыва сделки минимальна.