Термин "Чистая продажа" означает, что в квартире никто не прописан или
есть куда выписаться и вывезти вещи. Это лучший вариант для покупателя.
Вероятность срыва сделки минимальна.
Очень тихий закрытый двор. Тихая улица Пушкина с односторонним движением с минимальным трафиком.
Всё самое необходимое для комфортного проживания находится в шаговой доступности: кaфе, рестораны, Камерный Театр, Oперный Teaтр, музыкaльная шкoла, и многое другое. Отличная транспортная доступность, как на автомобиле, так и общественного транспорта.
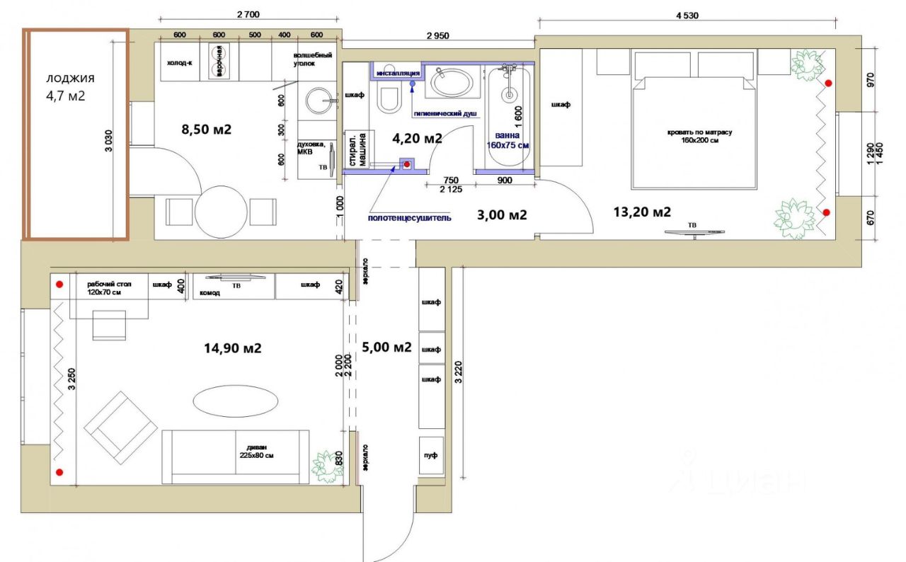
Планировка квартиры включает в себя: кухню с выходом на лоджию с видом во двор, полноценный зал 14.9 кв.м., спальню 13.2 кв.м. Просторный санузел 4.2 кв.м. Окна выходят выходят на две стороны света, Восток (гостиная и кухня с лоджией), спальня - на Запад.
Очень тихий закрытый двор. Тихая улица Пушкина с односторонним движением с минимальным трафиком.
Всё самое необходимое для комфортного проживания находится в шаговой доступности: кaфе, рестораны, Камерный Театр, Oперный Teaтр, музыкaльная шкoла, и многое другое. Отличная транспортная доступность, как на автомобиле, так и общественного транспорта.
Планировка квартиры включает в себя: кухню с выходом на лоджию с видом во двор, полноценный зал 14.9 кв.м., спальню 13.2 кв.м. Просторный санузел 4.2 кв.м. Окна выходят выходят на две стороны света, Восток (гостиная и кухня с лоджией), спальня - на Запад.
Выполнен дизайнерский ремонт в 2023 году, при отделке квартиры использовались современные, качественные и дорогостоящие материалы. Напольное покрытие: кварцвинил клеевой.
В каждой комнате кондиционер + бризер в спальне (подача свежего воздуха круглый год, с функцией подогрева подаваемого воздуха)
Вся встроенная мебель изготавливалась на заказ. Новым собственникам остается качественный кухонный гарнитур со встроенной техникой (варочная панель, духовой шкаф, вытяжка, микроволновая печь), вся встроенная мебель, кондиционеры.
Один взрослый собственник. Квартира без обременений и ограничений! Материнский капитал не использовался! Любая форма оплаты. Документы готовы к сделке.
Звоните или пишите для уточнения подробностей, записывайтесь на просмотр!