Арт. 124797938
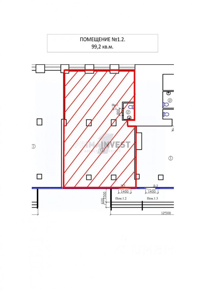
Конфигурация: Помещение правильной формы, без перепадов высот. Уникальная возможность: 5 отдельных входных групп. Подходит для использования как 5 независимых помещений или как единое пространство (супермаркет, шоурум, спортивный центр).
Фасад: Ветражное остекление.
Высота потолков: 3 метра.
Коммуникации: Все центральные (электричество, водоснабжение, отопление, канализация).
Парковка: Просторная собственная парковка, удобные подъездные пути.
Помещение подойдет под банковское отделение, аптеку, магазин продуктов, медицинский центр, сферу услуг или общепит.












