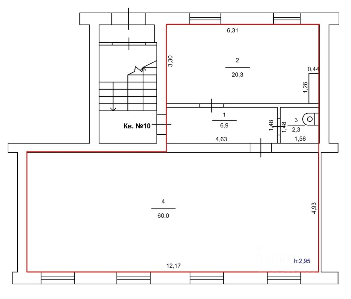
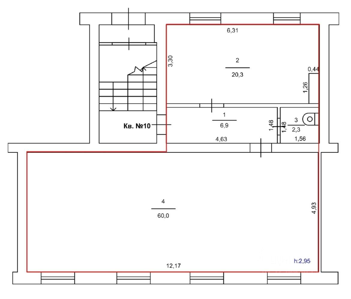
Предлагаем вашему вниманию готовую к переводу под нежилое, квартиру общей площадью 89.5м2 с высотой потолков 3.3м, удачно расположена в центре города на первой лини (4е окна на ул. Ленина, 2а во двор) на 1ом этаже жилого дома (практически весь 1ый этаж переведен в нежилой фонд). Выполнены подготовительные работы по ремонта: разводка эл-ва, на полу керамогранит, стены выровнены, потолок Армстронг, новые пластиковые окна.
Идеально подойдет под любой вид торговой деятельности, отделения банка, медицинского центра, стоматологии, салон красоты, офис, ПВЗ, арендный бизнес. Хороший автомобильный и пешеходный трафик! Торг обсуждается индивидуально! За более подробной информацией и по просмотру звоните по указанному телефону.











