Если цена в объявлении изменится, мы сразу сообщим вам об этом на электронную почту.
Нажимая «Подписаться», вы соглашаетесь с правилами.
продам капитальный гараж, Миасс935 740 ₽
21 окт
Дата публикации объявления
Обн. вчера
Дата обновления объявления
6
Количество просмотров (+ просмотры за сегодня)
4702 ₽/м²
Параметры
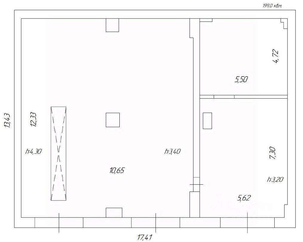
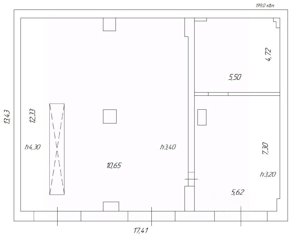
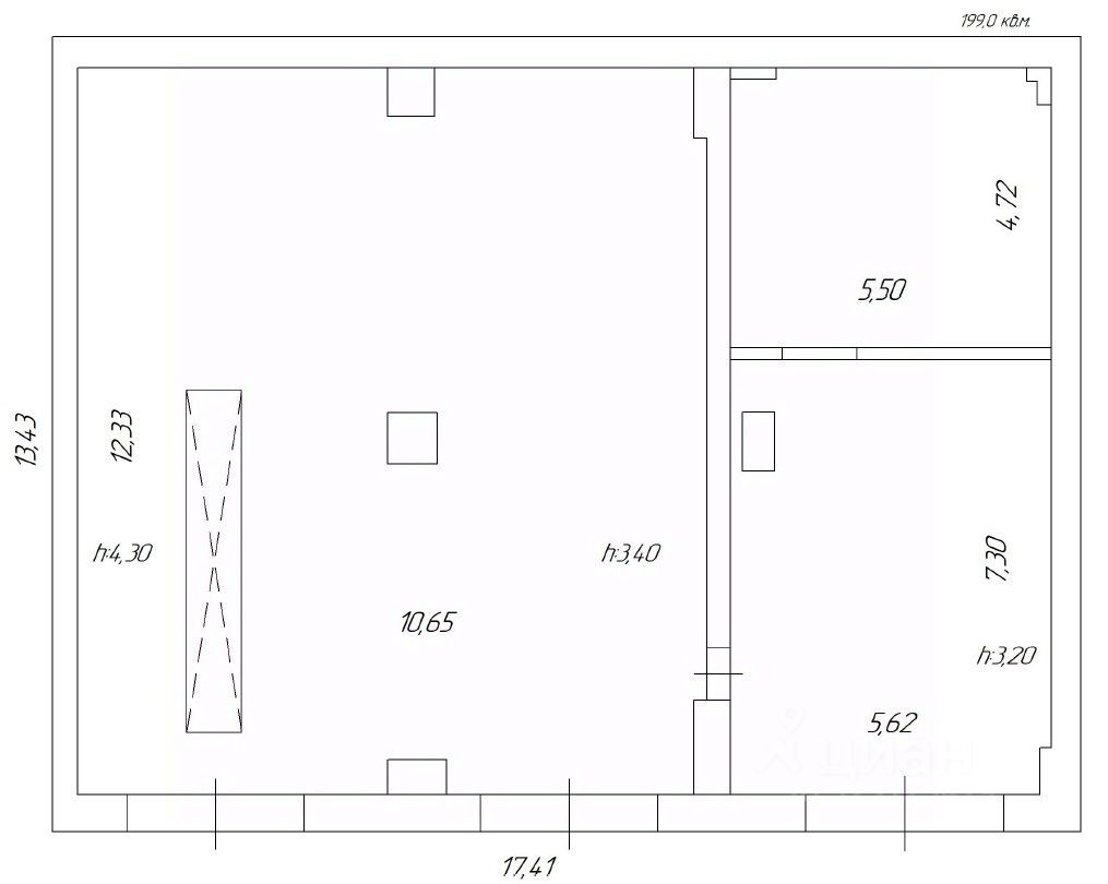
Общая площадь199 м2
ОАО ''РЖД'' предлагает к продаже здание гаража площадью 199 кв. м в городе Миасс Челябинской области. Здание из железобетонных блоков, одноэтажное, 1976 года постройки. Требуется проведение ремонта. Территория не огорожена. Есть возможность подключения электроснабжения и водоснабжения. Здание расположено на окраине города Миасс с высокой концентрацией производственно-складской застройки. Наличие парковочных мест на прилегающей территории. Хороший подъезд к зданию по асфальтированной дороге. В непосредственной близости находятся нефтебаза, остановки общественного транспорта, железнодорожная станция Миасс-2. Объект расположен в полосе отвода железной дороги на земельном участке площадью 480,25 кв. м, который будет передан в субаренду новому собственнику.
ОАО ''РЖД'' предлагает к продаже здание гаража площадью 199 кв. м в городе Миасс Челябинской области. Здание из железобетонных блоков, одноэтажное, 1976 года постройки. Требуется проведение ремонта. Территория не огорожена. Есть возможность подключения электроснабжения и водоснабжения. Здание расположено на окраине города Миасс с высокой концентрацией производственно-складской застройки. Наличие парковочных мест на прилегающей территории. Хороший подъезд к зданию по асфальтированной дороге. В непосредственной близости находятся нефтебаза, остановки общественного транспорта, железнодорожная станция Миасс-2. Объект расположен в полосе отвода железной дороги на земельном участке площадью 480,25 кв. м, который будет передан в субаренду новому собственнику. Об организации осмотра и подробных условиях продажи Вы можете узнать по телефону в объявлении. IDs: 7882, ПС: 17980, IDp: 35577.