Если цена в объявлении изменится, мы сразу сообщим вам об этом на электронную почту.
Нажимая «Подписаться», вы соглашаетесь с правилами.
продам дом, Любимая13 500 000 ₽
28 мая 2025
Дата публикации объявления
Обн. 20 мая
Дата обновления объявления
12
Количество просмотров (+ просмотры за сегодня)
67 500 ₽/м²
Чистая продажа
Термин "Чистая продажа" означает, что в квартире никто не прописан или
есть куда выписаться и вывезти вещи. Это лучший вариант для покупателя.
Вероятность срыва сделки минимальна.
Этажей2
Площадь участка5 соток
Общая площадь200 м2
ЭлектричествоЕсть
Газоснабжениецентральное
id:42839. Двухэтажный дом с гаражом на две машины в посёлке Радужный
Двухэтажный дом в посёлке Радужный - это идеальное сочетание комфорта, практичности и современного дизайна. Дом построен по продуманной планировке, которая отвечает всем требованиям современного жилья.
Особенности дома: * Предчистовая отделка. Все инженерные системы собраны и готовы к использованию. Водоотведение (центральная канализация), электричество и газ оформлены и подключены. Заключены договоры с энергообеспечивающими организациями. * Коммуникации. Разведена вода и канализация, смонтированы тёплые полы, установлены радиаторы. Стены внутри дома оштукатурены и готовы к нанесению любых видов покрытия. * Планировка. На первом этаже расположены две комнаты и санузел.
id:42839. Двухэтажный дом с гаражом на две машины в посёлке Радужный
Двухэтажный дом в посёлке Радужный - это идеальное сочетание комфорта, практичности и современного дизайна. Дом построен по продуманной планировке, которая отвечает всем требованиям современного жилья.
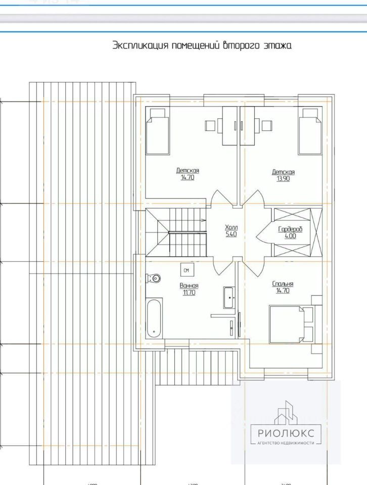
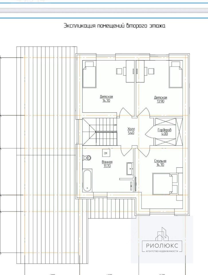
Особенности дома: * Предчистовая отделка. Все инженерные системы собраны и готовы к использованию. Водоотведение (центральная канализация), электричество и газ оформлены и подключены. Заключены договоры с энергообеспечивающими организациями. * Коммуникации. Разведена вода и канализация, смонтированы тёплые полы, установлены радиаторы. Стены внутри дома оштукатурены и готовы к нанесению любых видов покрытия. * Планировка. На первом этаже расположены две комнаты и санузел. На втором этаже - три просторные спальни и санузел площадью 11 м. Из кухни-гостиной, объединённой общей площадью 44 кв. м, есть выход на террасу площадью 15 кв. м с панорамным остеклением. Также предусмотрен прямой переход из гаража в дом.
Технические характеристики: * Фундамент: бетон М-300, размер 400/600 мм. Сваи: для дома - d=400 мм, для гаража - d=350 мм, h=2500, средний шаг - 2 м. Выполнена гидроизоляция фундамента внутренней и наружной части ростверка. * Стены, фасад: шлакоблок 400 мм, 30% пустотности. Армирование шлакоблока - металлическая сетка 3 мм. Фасадный утеплитель - пенополистирол ГОСТ, отделка фасада материалами Ceresit. Перегородки межкомнатные - 120-200 мм. * Кровля: металлочерепица, утепление - каменная вата толщиной 200 мм. * Окна: Veka, пятикамерный профиль 70 мм, энергосберегающий тройной стеклопакет. * Двери: входная металлическая дверь с терморазрывом 110 мм, гаражные ворота секционные с электроприводом DoorHan.
В этом Доме вы сможете создать уютное и комфортное пространство для жизни и отдыха.