Если цена в объявлении изменится, мы сразу сообщим вам об этом на электронную почту.
Нажимая «Подписаться», вы соглашаетесь с правилами.
продам 3-к, Пекинская, 105 190 000 ₽
17 апр 2025
Дата публикации объявления
Обн. сегодня
Дата обновления объявления
12
Количество просмотров (+ просмотры за сегодня)
77 463 ₽/м²
Чистая продажа
Термин "Чистая продажа" означает, что в квартире никто не прописан или
есть куда выписаться и вывезти вещи. Это лучший вариант для покупателя.
Вероятность срыва сделки минимальна.
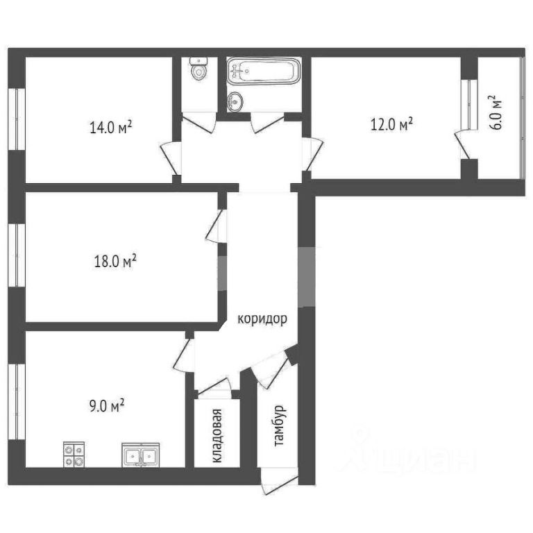
Продам 3-х комнатную квартиру 121 серии в Металлургическом районе, 9 этаж 10-ти этажного дома. Общая площадь квартиры без учета лоджии 67 кв.м., зал 17 кв.м., 2 спальни по 13 кв.м., кухня 9 кв.м., кладовка 1,1 кв.м., большая застекленная лоджия 6 кв.м., санузел раздельный. Квартира в хорошем состоянии: пластиковые окна, натяжные потолки, частично поменяны межкомнатные двери, в ванной и туалете стены отделаны пластиковыми панелями, в коридоре и в спальне на полу ламинат, в остальных помещениях на полу линолеум, 3 окна (кухня, зал и спальня) выходят во двор на север, спальня с лоджией на улицу Пекинскую на юг, квартира очень теплая. В доме проводился кап.
Продам 3-х комнатную квартиру 121 серии в Металлургическом районе, 9 этаж 10-ти этажного дома. Общая площадь квартиры без учета лоджии 67 кв.м., зал 17 кв.м., 2 спальни по 13 кв.м., кухня 9 кв.м., кладовка 1,1 кв.м., большая застекленная лоджия 6 кв.м., санузел раздельный. Квартира в хорошем состоянии: пластиковые окна, натяжные потолки, частично поменяны межкомнатные двери, в ванной и туалете стены отделаны пластиковыми панелями, в коридоре и в спальне на полу ламинат, в остальных помещениях на полу линолеум, 3 окна (кухня, зал и спальня) выходят во двор на север, спальня с лоджией на улицу Пекинскую на юг, квартира очень теплая. В доме проводился кап. ремонт, новый лифт, в подъезде пластиковые окна, новые почтовые ящики, подъезд очень чистый, хорошие соседи, во дворе детская площадка. Дом расположен в районе с развитой инфраструктурой: 2 детских сада в 3-5 минутах ходьбы, школа 73, магазины: пятерочка, магнит, красное-белое, Чебаркульская птица, пекарня, овощные магазины, в 5 минутах ходьбы Михеевский рынок, хозтовары, рядом с домом Металлургический суд, налоговая, почта, рядом с домом остановка Аносова, в 5 минутах ходьбы остановка ул. Сталеваров (к/т Орлёнок): трамвай, автобусы, маршрутки во все районы города, 2 автостоянки в 5 минутах ходьбы, в общем вся инфраструктура. Один взрослый собственник, согласие супруги не требуется, в собственности более 5 лет, прописан 1 собственник, квартира без долгов и обременений, несложный вариант подбора, будет покупаться 1 квартира за меньшую стоимость без ипотеки, документы все готовы к продаже. Звоните в любое время.