2-к, Молодогвардейцев, 68 Показать на карте
Калининский район, 22-й микрорайон
Челябинск
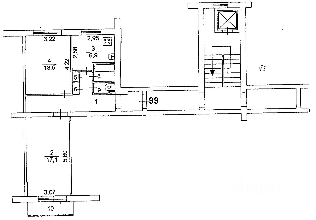
Квартира находится спокойном зелёном районе в центре северо-запада, расположена на 3 этаже 5-этажного панельного дома. Общая площадь квартиры составляет 45,9 кв.м. Окна выходят на разные стороны (восток-запад), всегда светло, достаточно солнечного света. Вторая линия, вдали от дороги, что избавит от шума и пыли, поэтому в квартире всегда тихо и спокойно.Комнаты и санузел раздельные, что позволяет создать комфортное пространство для жизни семьи. Для удобства хранения вещей есть кладовка и небольшая гардеробная. Также имеется балкон (новое тёплое остекление), где можно организовать уютное место для отдыха.Дом находится в хорошем состоянии, чистый подъезд, благополучные соседи. Вокруг дома много зелени, что делает проживание здесь особенно приятным. Открытая парковка расположена рядом с домом.Развитая инфраструктура района: в шаговой доступности расположены школа 78 и детские сады, что удобно для семей с детьми. Также рядом есть клиники и множество магазинов. Удобная транспортная развязка: рядом с домом находятся остановки общественного транспорта ул. Бр. Кашириных и Молодогвардейцев, откуда можно быстро добраться до любой части города.Один взрослый собственник. Все документы в порядке, квартира без обременений. Возможен торг.
46 м2
3 / 5 этаж
Панель
- Показать контакты
- Добавить в избранное
46 м2
3 / 5 этаж
Панель
4 400 000
95 652 /м2
