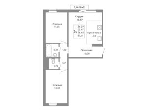
3-к, Труда, 5 стр. Показать на карте
Центральный район, Центр
Челябинск, Западный луч
Микрорайон ''Западный луч'' — современный жилой квартал в самом центре города, на пересечении улиц Труда и Энгельса.Монолитно-каркасные высотные дома формируют узнаваемый архитектурный облик и стали настоящим украшением центральной части Челябинска.Преимущества микрорайона:— современные технологии строительства— закрытая благоустроенная дворовая территория с контролем доступа— консьерж-сервис— собственная управляющая компания— свободные планировки с возможностью объединения квартир— жизнь в центре города— городской бор в шаговой доступности— коммерческие помещения на первых этажах''Западный луч'' — это комфорт городской жизни, статусная локация и продуманная инфраструктура для жизни, работы и инвестиций.
81 м2
7 / 25 этаж
Монолит
- Показать контакты
- Добавить в избранное
81 м2
7 / 25 этаж
Монолит
12 791 956
156 400 /м2
Новостройка,
дом сдан
дом сдан
